物件詳細
中古マンション購入や中古住宅購入、土地購入など不動産購入をお考えなら、全国店舗ネットワークの三井住友トラスト不動産にご相談下さい。豊富な物件情報をご用意し、物件探しをお手伝いをします。
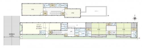
中古一戸建て
物件情報
月々のお支払金額(試算)
ボーナス支払額(年間)
用意できる頭金
返済期間
適用する住宅ローン金利
月々のお支払金額 万円
年収も含めた詳細なシミュレーションはこちら
※シミュレーションでの試算(計算)結果は、あくまでも目安です。実際にローン契約をする際は、詳細を金融機関にご確認ください。
※実際のローン契約の際には、諸費用が別途かかります(手数料や印紙税、保証料など)。契約の際にご確認ください。
お問い合わせ
電話でのお問い合わせ
住所
京都府京都市下京区烏丸通四条下る水銀屋町612番地 四条烏丸ビル5階
WEBでのお問い合わせ
