物件詳細
中古マンション購入や中古住宅購入、土地購入など不動産購入をお考えなら、全国店舗ネットワークの三井住友トラスト不動産にご相談下さい。豊富な物件情報をご用意し、物件探しをお手伝いをします。
新築一戸建て
おすすめポイント
-
担当者からのひと言
八王子センター
担当者:
西山 恭輔
(にしやま きょうすけ)
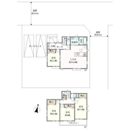
- 2026年4月中旬完成予定の新築戸建てです!
LDK約16.6帖!
太陽光発電システム搭載です!
▼立地
・松子舞団地内のため周辺含め区画の整った旧分譲地
・北東角地
▼特徴
・家族との会話が弾む対面式キッチンを採用
・全居室に収納スペースを確保
・全室南向きのため採光良好
・各階にトイレがあり、来客時も気兼ねなく利用可能
・駐車2台可能
▼設備
・浴室乾燥機
・TVモニタ付インターホン
- 周辺施設
- セブンイレブン元八王子店 距離770m 徒歩10分
スーパーオザム大楽寺店 距離1410m 徒歩18分
ドラッグセイムス元八王子店 距離670m 徒歩9分
物件情報
月々のお支払金額(試算)
ボーナス支払額(年間)
用意できる頭金
返済期間
適用する住宅ローン金利
月々のお支払金額 万円
年収も含めた詳細なシミュレーションはこちら
※シミュレーションでの試算(計算)結果は、あくまでも目安です。実際にローン契約をする際は、詳細を金融機関にご確認ください。
※実際のローン契約の際には、諸費用が別途かかります(手数料や印紙税、保証料など)。契約の際にご確認ください。
お問い合わせ
WEBでのお問い合わせ
