物件詳細
中古マンション購入や中古住宅購入、土地購入など不動産購入をお考えなら、全国店舗ネットワークの三井住友トラスト不動産にご相談下さい。豊富な物件情報をご用意し、物件探しをお手伝いをします。
新築一戸建て
パノラマ画像
おすすめポイント
-
担当者からのひと言
石神井センター
担当者:
横溝 裕貴
(よこみぞ ひろき)
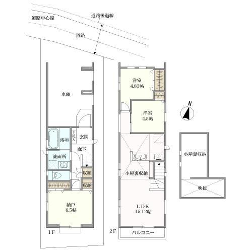
- 西武池袋線「石神井公園」駅徒歩15分の新築分譲住宅です。間取りは2SLDKとなりますがロフトがついています。なお、耐震等級3、耐熱等性能等級5、設計住宅性能評価証明取得済み、建設住宅性能評価証明取得予定の物件です。建物は2025年10月に完成致しましたので、室内の内覧等可能でございます。お気軽にお問合せ下さい。
- 周辺施設
- 練馬区立泉新小学校 距離220m 徒歩3分
練馬区立三原台中学校 距離250m 徒歩4分
セブンイレブン練馬石神井町8丁目店 距離500m 徒歩7分
物件情報
月々のお支払金額(試算)
ボーナス支払額(年間)
用意できる頭金
返済期間
適用する住宅ローン金利
月々のお支払金額 万円
年収も含めた詳細なシミュレーションはこちら
※シミュレーションでの試算(計算)結果は、あくまでも目安です。実際にローン契約をする際は、詳細を金融機関にご確認ください。
※実際のローン契約の際には、諸費用が別途かかります(手数料や印紙税、保証料など)。契約の際にご確認ください。
お問い合わせ
電話でのお問い合わせ
住所
東京都練馬区石神井町2丁目14番1号 石神井公園ピアレスA2階
WEBでのお問い合わせ
