物件詳細

中古マンション購入や中古住宅購入、土地購入など不動産購入をお考えなら、全国店舗ネットワークの三井住友トラスト不動産にご相談下さい。豊富な物件情報をご用意し、物件探しをお手伝いをします。

中古一戸建て

横浜市港北区大曽根台
価格
5,980万円
月々のお支払金額(試算)
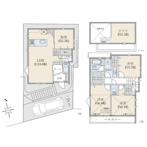
間取り
4LDK
建物面積
98.13m²
土地面積
101.89m²
  • 東急東横線「大倉山」駅徒歩15分圏内・東急のホームセキュリティ付きIoT住宅
  • 【LDK約18帖】LD部分に床暖房を採用!
  • 白を基調とした明るく開放的なリビングです。
  • 南向きの4LDK+ロフト+WICタイプ

資料がほしい・現地が見たい

物件の魅力

物件情報

更新日:2026年3月22日 次回更新予定日:2026年4月5日各項目の説明

所在地 神奈川県横浜市港北区大曽根台 この街の情報を見る 周辺地図
交通 東急東横線 大倉山駅 徒歩15分
横浜市営地下鉄ブルーライン 新羽駅 徒歩21分
価格 5,980万円 月々のお支払金額(試算)
間取り 4LDK
土地面積 101.89m2(30.8坪) 登記簿 建物延面積 98.13m2
構造/階建 木造/2階建 建築年月 2020年1月
土地権利 所有権 地目 登記簿:宅地
都市計画 市街化区域 用途地域 第一種低層住居専用地域
建ぺい率 50% 容積率 100%
駐車場 有(敷地内) 空1台 
接道状況 一方
設備・施設
設備・施設・
その他使用料金
現況 居住中 引渡し可能年月 相談
取引態様 媒介
特記事項
備考 ※容積率は洗面道路により制限される場合があります。 ※理蔵文化財包蔵地に該当しています。※接道道路は位置指定道路となります。
物件番号 TAT250104

月々のお支払金額(試算)

物件価格
5,980 万円
ボーナス支払額(年間)
用意できる頭金
返済期間
適用する住宅ローン金利

月々のお支払金額  万円 年収も含めた詳細なシミュレーションはこちらローンシミュレーション

※シミュレーションでの試算(計算)結果は、あくまでも目安です。実際にローン契約をする際は、詳細を金融機関にご確認ください。

※実際のローン契約の際には、諸費用が別途かかります(手数料や印紙税、保証料など)。契約の際にご確認ください。

お問い合わせ

電話でのお問い合わせ

武蔵小杉センター

0120-430-534(通話無料)

営業時間
9:30~17:30
定休日
水曜・祝日
住所
神奈川県川崎市中原区小杉町1丁目403番地 武蔵小杉STMビル 7階
WEBでのお問い合わせ

資料がほしい・現地が見たい

物件情報を印刷

検討中リストに追加

LINEで送る