物件詳細
中古マンション購入や中古住宅購入、土地購入など不動産購入をお考えなら、全国店舗ネットワークの三井住友トラスト不動産にご相談下さい。豊富な物件情報をご用意し、物件探しをお手伝いをします。
新築一戸建て
おすすめポイント
-
担当者からのひと言
上大岡センター
担当者:
猪俣 智也
(いのまた ともや)
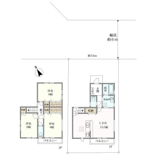
- ・2026年4月完成予定の新築戸建
・京急本線「浦賀」駅まで徒歩10分
・延床面積:84.46㎡の3LDK
・車庫スペース有
・登記簿地目は山林ですが、引渡しまでに売主負担にて宅地に変更します
- 周辺施設
- 横須賀市立浦賀小学校 距離840m 徒歩11分
横須賀市立浦賀中学校 距離960m 徒歩12分
京急ストア浦賀店 距離920m 徒歩12分
物件情報
月々のお支払金額(試算)
ボーナス支払額(年間)
用意できる頭金
返済期間
適用する住宅ローン金利
月々のお支払金額 万円
年収も含めた詳細なシミュレーションはこちら
※シミュレーションでの試算(計算)結果は、あくまでも目安です。実際にローン契約をする際は、詳細を金融機関にご確認ください。
※実際のローン契約の際には、諸費用が別途かかります(手数料や印紙税、保証料など)。契約の際にご確認ください。
お問い合わせ
電話でのお問い合わせ
住所
神奈川県横浜市港南区上大岡西1丁目6番1号 ゆめおおおかオフィスタワー17階
WEBでのお問い合わせ
