物件詳細

中古マンション購入や中古住宅購入、土地購入など不動産購入をお考えなら、全国店舗ネットワークの三井住友トラスト不動産にご相談下さい。豊富な物件情報をご用意し、物件探しをお手伝いをします。

中古一戸建て

川西市見野3丁目
価格
2,280万円
月々のお支払金額(試算)
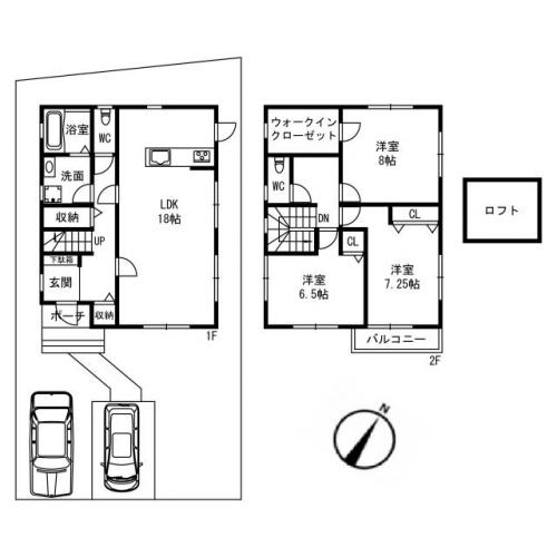
間取り
3LDK
建物面積
102.68m²
土地面積
137.59m²
  • 現地外観写真
  • 現地外観写真
  • その他内観
  • その他内観
  • その他内観
  • 間取り図

資料がほしい・現地が見たい

物件の魅力

物件情報

更新日:2025年12月5日 次回更新予定日:2025年12月19日各項目の説明

所在地 兵庫県川西市見野3丁目 この街の情報を見る 周辺地図
交通 能勢電鉄妙見線 山下駅 徒歩11分
能勢電鉄妙見線 畦野駅 徒歩13分
価格 2,280万円 月々のお支払金額(試算)
間取り 3LDK
土地面積 137.59m2(41.6坪) 登記簿 別途私道負担0.43m2 建物延面積 102.68m2
構造/階建 木造/2階建 建築年月 2001年7月
土地権利 所有権 地目 登記簿:宅地
都市計画 市街化区域 用途地域 第二種中高層住居専用地域
建ぺい率 60% 容積率 200%
駐車場 有(敷地内) 空2台 
接道状況 一方
設備・施設
設備・施設・
その他使用料金
現況 空家 引渡し可能年月 即時
取引態様 媒介
特記事項
備考 ≪周辺≫・山下駅 徒歩11分(約850m) ・畦野駅 徒歩13分(約1000m)・ローソン 川西見野三丁目店 徒歩3分(約190m) ■2025年11月リフォーム内容 《内装》 ・新調:システムキッチン、ガス給湯器、モニターフォン ・交換:温水洗浄便座 ・張替:クロス ・その他:建具塗装 《外装》 ・駐車場1台増設
物件番号 R00098836

月々のお支払金額(試算)

物件価格
2,280 万円
ボーナス支払額(年間)
用意できる頭金
返済期間
適用する住宅ローン金利

月々のお支払金額  万円 年収も含めた詳細なシミュレーションはこちらローンシミュレーション

※シミュレーションでの試算(計算)結果は、あくまでも目安です。実際にローン契約をする際は、詳細を金融機関にご確認ください。

※実際のローン契約の際には、諸費用が別途かかります(手数料や印紙税、保証料など)。契約の際にご確認ください。

お問い合わせ

電話でのお問い合わせ

豊中センター

0120-88-9225(通話無料)

営業時間
9:30~17:30
定休日
水曜・祝日
住所
大阪府豊中市本町1丁目1番1号 豊中阪急ビル1階
WEBでのお問い合わせ

資料がほしい・現地が見たい

物件情報を印刷

検討中リストに追加

LINEで送る

最近閲覧した物件

リストから削除する

リストから削除する

リストから削除する

リストから削除する

リストから削除する

リストから削除する

リストから削除する