物件詳細

中古マンション購入や中古住宅購入、土地購入など不動産購入をお考えなら、全国店舗ネットワークの三井住友トラスト不動産にご相談下さい。豊富な物件情報をご用意し、物件探しをお手伝いをします。

中古一戸建て

藤沢市辻堂1丁目
価格
6,280万円
月々のお支払金額(試算)
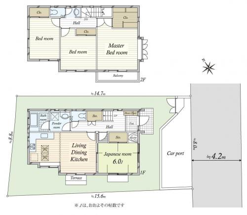
間取り
4LDK
建物面積
99.36m²
土地面積
127.61m²
  • 外観
  • ダイニングキッチン(撮影年月:2025年07月)
  • ダイニング(撮影年月:2025年07月)

資料がほしい・現地が見たい

物件の魅力

物件情報

更新日:2026年3月22日 次回更新予定日:2026年4月5日各項目の説明

所在地 神奈川県藤沢市辻堂1丁目 この街の情報を見る 周辺地図
交通 JR東海道本線 辻堂駅 徒歩7分
小田急江ノ島線 本鵠沼駅 徒歩35分
価格 6,280万円 月々のお支払金額(試算)
間取り 4LDK
土地面積 127.61m2(38.6坪) 登記簿 建物延面積 99.36m2
構造/階建 木造/2階建 建築年月 1994年11月
土地権利 所有権 地目 登記簿:宅地
都市計画 市街化区域 用途地域 第一種低層住居専用地域
建ぺい率 50% 容積率 80%
駐車場   
接道状況 一方
設備・施設
設備・施設・
その他使用料金
現況 空家 引渡し可能年月 相談
取引態様 媒介
特記事項
備考 建物:契約不適合責任免責/設備:都市ガス、公営水道、本下水
物件番号 NFB4B6001

月々のお支払金額(試算)

物件価格
6,280 万円
ボーナス支払額(年間)
用意できる頭金
返済期間
適用する住宅ローン金利

月々のお支払金額  万円 年収も含めた詳細なシミュレーションはこちらローンシミュレーション

※シミュレーションでの試算(計算)結果は、あくまでも目安です。実際にローン契約をする際は、詳細を金融機関にご確認ください。

※実際のローン契約の際には、諸費用が別途かかります(手数料や印紙税、保証料など)。契約の際にご確認ください。

お問い合わせ

電話でのお問い合わせ

藤沢センター

0120-314-703(通話無料)

営業時間
9:30~17:30
定休日
水曜・祝日
住所
神奈川県藤沢市南藤沢22番2号 春日ビル5階
WEBでのお問い合わせ

資料がほしい・現地が見たい

物件情報を印刷

検討中リストに追加

LINEで送る

最近閲覧した物件