物件詳細

中古マンション購入や中古住宅購入、土地購入など不動産購入をお考えなら、全国店舗ネットワークの三井住友トラスト不動産にご相談下さい。豊富な物件情報をご用意し、物件探しをお手伝いをします。

中古一戸建て

日進市岩崎町新ラ田
価格
4,480万円
月々のお支払金額(試算)
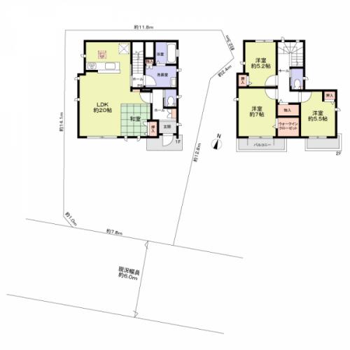
間取り
3LDK
建物面積
98.56m²
土地面積
160.86m²

資料がほしい・現地が見たい

物件の魅力

物件情報

更新日:2026年3月11日 次回更新予定日:2026年3月25日各項目の説明

所在地 愛知県日進市岩崎町新ラ田 この街の情報を見る 周辺地図
交通 名鉄豊田線 日進駅 バス乗車17分石兼停 徒歩3分
名古屋市営地下鉄鶴舞線 赤池駅 バス乗車26分石兼停 徒歩3分
価格 4,480万円 月々のお支払金額(試算)
間取り 3LDK
土地面積 160.86m2(48.6坪) 登記簿 建物延面積 98.56m2
構造/階建 軽量鉄骨/2階建 建築年月 2017年6月
土地権利 所有権 地目 登記簿:宅地
都市計画 市街化区域 用途地域 第一種低層住居専用地域
建ぺい率 60% 容積率 100%
駐車場 有(敷地内)  
接道状況 一方
設備・施設
設備・施設・
その他使用料金
現況 居住中 引渡し可能年月 相談
取引態様 媒介
特記事項
備考 建築基準法22条区域、開発区域、下水道処理区域、防災指定地内
物件番号 G00627056

月々のお支払金額(試算)

物件価格
4,480 万円
ボーナス支払額(年間)
用意できる頭金
返済期間
適用する住宅ローン金利

月々のお支払金額  万円 年収も含めた詳細なシミュレーションはこちらローンシミュレーション

※シミュレーションでの試算(計算)結果は、あくまでも目安です。実際にローン契約をする際は、詳細を金融機関にご確認ください。

※実際のローン契約の際には、諸費用が別途かかります(手数料や印紙税、保証料など)。契約の際にご確認ください。

お問い合わせ

電話でのお問い合わせ

八事センター

0120-210-782(通話無料)

営業時間
9:30~17:30
定休日
水曜・祝日
住所
愛知県名古屋市天白区八事石坂129番地 ファッションビルシャル2階
WEBでのお問い合わせ

資料がほしい・現地が見たい

物件情報を印刷

検討中リストに追加

LINEで送る

最近閲覧した物件