物件詳細

中古マンション購入や中古住宅購入、土地購入など不動産購入をお考えなら、全国店舗ネットワークの三井住友トラスト不動産にご相談下さい。豊富な物件情報をご用意し、物件探しをお手伝いをします。

中古一戸建て

小金井市貫井北町2丁目
価格
14,800万円
月々のお支払金額(試算)
間取り
5SLDK
建物面積
145.56m²
土地面積
183.79m²
  • 外観 南側前面道路より撮影
  • 外観 西側前面道路より撮影
  • 外観 玄関前より撮影
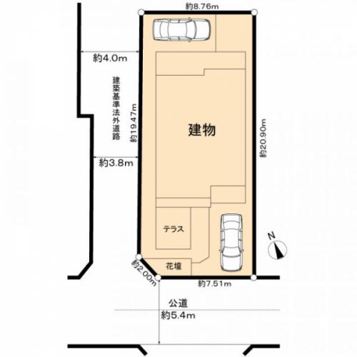
  • 区画図 駐車場は北側、南側の2台可能です(車種による)
  • 玄関 床材は挽板(チェリー)です。シューズインクロークもあります。

資料がほしい・現地が見たい

物件の魅力

物件情報

更新日:2025年12月5日 次回更新予定日:2025年12月19日各項目の説明

所在地 東京都小金井市貫井北町2丁目 この街の情報を見る 周辺地図
交通 JR中央線 武蔵小金井駅 徒歩10分

価格 14,800万円 月々のお支払金額(試算)
間取り 5SLDK
土地面積 183.79m2(55.5坪) 登記簿 別途私道負担42.79m2 建物延面積 145.56m2
構造/階建 木造/2階建 建築年月 2013年6月
土地権利 所有権 地目 登記簿:宅地
都市計画 市街化区域 用途地域 第一種低層住居専用地域
建ぺい率 50% 容積率 80%
駐車場 有(敷地内)  
接道状況 一方
設備・施設
設備・施設・
その他使用料金
現況 空家 引渡し可能年月 相談
取引態様 媒介
特記事項
備考
物件番号 G00620851

月々のお支払金額(試算)

物件価格
14,800 万円
ボーナス支払額(年間)
用意できる頭金
返済期間
適用する住宅ローン金利

月々のお支払金額  万円 年収も含めた詳細なシミュレーションはこちらローンシミュレーション

※シミュレーションでの試算(計算)結果は、あくまでも目安です。実際にローン契約をする際は、詳細を金融機関にご確認ください。

※実際のローン契約の際には、諸費用が別途かかります(手数料や印紙税、保証料など)。契約の際にご確認ください。

お問い合わせ

電話でのお問い合わせ

吉祥寺センター

0120-202-261(通話無料)

営業時間
9:30~17:30
定休日
水曜・祝日
住所
東京都武蔵野市吉祥寺本町2丁目2番15号 プレファス吉祥寺6階
WEBでのお問い合わせ

資料がほしい・現地が見たい

物件情報を印刷

検討中リストに追加

LINEで送る

最近閲覧した物件