物件詳細
中古マンション購入や中古住宅購入、土地購入など不動産購入をお考えなら、全国店舗ネットワークの三井住友トラスト不動産にご相談下さい。豊富な物件情報をご用意し、物件探しをお手伝いをします。
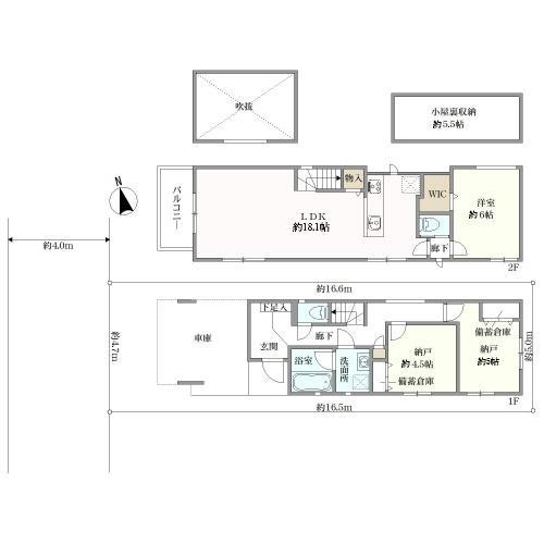
新築一戸建て
パノラマ画像
おすすめポイント
- 周辺施設
- 練馬区立向山小学校 距離340m 徒歩5分
ライフ練馬中村北店 距離460m 徒歩6分
ファミリーマート練馬中村橋店 距離540m 徒歩7分
物件情報
月々のお支払金額(試算)
ボーナス支払額(年間)
用意できる頭金
返済期間
適用する住宅ローン金利
月々のお支払金額 万円
年収も含めた詳細なシミュレーションはこちら
※シミュレーションでの試算(計算)結果は、あくまでも目安です。実際にローン契約をする際は、詳細を金融機関にご確認ください。
※実際のローン契約の際には、諸費用が別途かかります(手数料や印紙税、保証料など)。契約の際にご確認ください。
お問い合わせ
電話でのお問い合わせ
住所
東京都世田谷区宮坂3丁目4番3号 マガザン経堂3階
WEBでのお問い合わせ

最近閲覧した物件
- 西一社団地
- 名古屋市名東区亀の井1丁目12号棟
- 1,080万円