物件詳細

中古マンション購入や中古住宅購入、土地購入など不動産購入をお考えなら、全国店舗ネットワークの三井住友トラスト不動産にご相談下さい。豊富な物件情報をご用意し、物件探しをお手伝いをします。

中古一戸建て

新座市東北2丁目
価格
4,680万円
月々のお支払金額(試算)
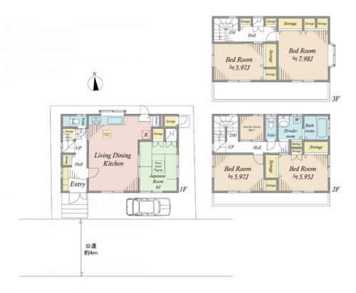
間取り
5SLDK
建物面積
126.06m²
土地面積
78.81m²
  • 東武東上線「志木」駅 徒歩12分
  • 南西から入る陽光で明るく家族が自然に集まるリビングダイニング
  • ワークトップが使いやすくパステルグリーンが爽やかなキッチンです!
  • 収納力のあるストレージと採光に優れた出窓が開放的な空間を演出する7.98帖の洋室
  • 衝撃吸収性・防音性・クッション性に優れた6畳のお部屋

資料がほしい・現地が見たい

物件の魅力

物件情報

更新日:2026年3月22日 次回更新予定日:2026年4月5日各項目の説明

所在地 埼玉県新座市東北2丁目 この街の情報を見る 周辺地図
交通 東武東上線 志木駅 徒歩12分

価格 4,680万円 月々のお支払金額(試算)
間取り 5SLDK
土地面積 78.81m2(23.8坪) 登記簿 建物延面積 126.06m2
構造/階建 木造/3階建 建築年月 2003年1月
土地権利 所有権 地目 登記簿:宅地
都市計画 市街化区域 用途地域 第一種住居地域
建ぺい率 60% 容積率 160%
駐車場 有(敷地内)  
接道状況 一方
設備・施設
設備・施設・
その他使用料金
現況 居住中 引渡し可能年月 相談
取引態様 媒介
特記事項
備考 ※駐車場:軽自動車限定 車種制限あり
物件番号 YAAA12903

月々のお支払金額(試算)

物件価格
4,680 万円
ボーナス支払額(年間)
用意できる頭金
返済期間
適用する住宅ローン金利

月々のお支払金額  万円 年収も含めた詳細なシミュレーションはこちらローンシミュレーション

※シミュレーションでの試算(計算)結果は、あくまでも目安です。実際にローン契約をする際は、詳細を金融機関にご確認ください。

※実際のローン契約の際には、諸費用が別途かかります(手数料や印紙税、保証料など)。契約の際にご確認ください。

お問い合わせ

電話でのお問い合わせ

所沢センター

0120-02-3397(通話無料)

営業時間
9:30~17:30
定休日
水曜・祝日
住所
埼玉県所沢市日吉町2番4号 リエート所沢2階
WEBでのお問い合わせ

資料がほしい・現地が見たい

物件情報を印刷

検討中リストに追加

LINEで送る

最近閲覧した物件

リストから削除する

リストから削除する