物件詳細

中古マンション購入や中古住宅購入、土地購入など不動産購入をお考えなら、全国店舗ネットワークの三井住友トラスト不動産にご相談下さい。豊富な物件情報をご用意し、物件探しをお手伝いをします。

中古一戸建て

厚木市上落合
価格
1,890万円
月々のお支払金額(試算)
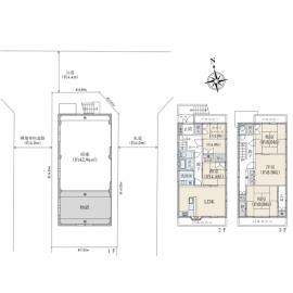
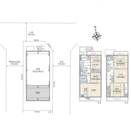
間取り
5LDK
建物面積
183.42m²
土地面積
114.80m²

資料がほしい・現地が見たい

物件情報

更新日:2026年4月30日 次回更新予定日:2026年5月14日各項目の説明

所在地 神奈川県厚木市上落合 この街の情報を見る 周辺地図
交通 小田急小田原線 愛甲石田駅 徒歩16分

価格 1,890万円 月々のお支払金額(試算)
間取り 5LDK
土地面積 114.80m2(34.7坪) 登記簿 別途私道負担36.00m2 建物延面積 183.42m2
構造/階建 鉄骨/3階建 建築年月 1991年5月
土地権利 所有権 地目 登記簿:宅地
都市計画 市街化区域 用途地域 第一種中高層住居専用地域
建ぺい率 60% 容積率 200%
駐車場 有(敷地内) 空3台 
接道状況 二方
設備・施設
設備・施設・
その他使用料金
現況 空家 引渡し可能年月 相談
取引態様 媒介
特記事項
備考 ■建物契約不適合責任免責 ■容積率は、前面道路幅員により制限されます。(幅員×4/10×100%)
物件番号 TAB260042

月々のお支払金額(試算)

物件価格
1,890 万円
ボーナス支払額(年間)
用意できる頭金
返済期間
適用する住宅ローン金利

月々のお支払金額  万円 年収も含めた詳細なシミュレーションはこちらローンシミュレーション

※シミュレーションでの試算(計算)結果は、あくまでも目安です。実際にローン契約をする際は、詳細を金融機関にご確認ください。

※実際のローン契約の際には、諸費用が別途かかります(手数料や印紙税、保証料など)。契約の際にご確認ください。

お問い合わせ

電話でのお問い合わせ

相模大野センター

0120-873-673(通話無料)

営業時間
9:30~17:30
定休日
水曜・祝日
住所
神奈川県相模原市南区相模大野3丁目13番7号 YSビル(三井住友信託銀行)2階
WEBでのお問い合わせ

資料がほしい・現地が見たい

物件情報を印刷

検討中リストに追加

LINEで送る

最近閲覧した物件