物件詳細

中古マンション購入や中古住宅購入、土地購入など不動産購入をお考えなら、全国店舗ネットワークの三井住友トラスト不動産にご相談下さい。豊富な物件情報をご用意し、物件探しをお手伝いをします。

中古マンション

  • NEW

サーパス東島田
価格
2,150万円
月々のお支払金額(試算)
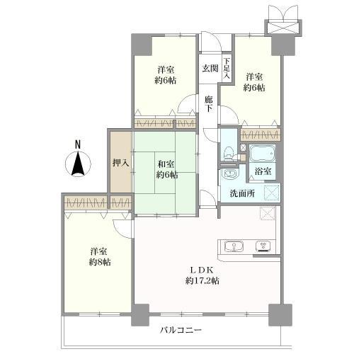
間取り
4LDK
専有面積
93.20m²
所在地
岡山県岡山市北区東島田町2丁目
  • 外観(南西側より撮影)
  • 外観(北東側より撮影)
  • 玄関
  • LDK
  • LDK
  • キッチン
  • コンロ
  • 浴室
  • トイレ
  • 洗面所
  • 洋室約8帖
  • 和室約6帖
  • 洋室西側約6帖
  • 洋室東側約6帖
  • バルコニー
  • 眺望
  • エントランス
  • エントランス
  • オートロック
  • 集合郵便受け
  • 自転車置場
  • 駐車場

資料がほしい・現地が見たい

おすすめポイント

担当者からのひと言  岡山センター  担当者: 藤本 祐介 (ふじもと ゆうすけ)
即入居可能です。
南西角部屋です。

物件の魅力

周辺施設
ウエルシア岡山東島田店 距離180m 徒歩3分
岡山島田郵便局 距離190m 徒歩3分
新鮮市場きむら岡山大供店 距離620m 徒歩8分

物件情報

更新日:2026年2月4日 次回更新予定日:2026年2月18日各項目の説明

マンション名 サーパス東島田
所在地 岡山県岡山市北区東島田町2丁目 この街の情報を見る 周辺地図
交通 JR山陽本線 岡山駅 徒歩16分

価格 2,150万円 月々のお支払金額(試算)
間取り 4LDK 専有面積 93.20m2(28.1坪) 壁芯
構造 鉄筋コンクリート 所在階/階建 5階/11階建
バルコニー 13.80m2 主要採光方向
その他面積
建築年月 1995年2月 総戸数 61戸
土地権利 所有権(敷地権) 用途地域 商業地域
管理形態 全部委託 管理員の勤務形態 日勤
管理費 8,800円/月 修繕積立金 12,600円/月
駐車場 空無  
設備・施設 駐輪場、バイク置場、エレベータ
設備・施設・
その他使用料
分譲会社 株式会社穴吹工務店
施工会社 株式会社穴吹工務店
管理会社 株式会社穴吹コミュニティ
現況 空家 引渡し可能年月 即時
取引態様 媒介
備考 ■2021年2月リフォーム済(キッチン・浴室・トイレ交換)売主が契約中の駐車場が1台ありますが、解約後は抽選となります。(月額使用料:金12,000円)2026年3月上旬まで大規模修繕工事実施中です。家具、調度品は販売価格に含まれません。
■管理組合:あり
物件番号 Bok250532

月々のお支払金額(試算)

物件価格
2,150 万円
ボーナス支払額(年間)
用意できる頭金
返済期間
適用する住宅ローン金利

月々のお支払金額  万円 年収も含めた詳細なシミュレーションはこちらローンシミュレーション

※シミュレーションでの試算(計算)結果は、あくまでも目安です。実際にローン契約をする際は、詳細を金融機関にご確認ください。

※実際のローン契約の際には、諸費用が別途かかります(手数料や印紙税、保証料など)。契約の際にご確認ください。

お問い合わせ

電話でのお問い合わせ

岡山センター

担当者:藤本 祐介(ふじもと ゆうすけ)

0120-086-237(通話無料)

営業時間
9:30~17:30
定休日
水曜・祝日
住所
岡山県岡山市北区下石井1丁目1番3号 日本生命岡山第二ビル7階
WEBでのお問い合わせ

資料がほしい・現地が見たい

物件情報と地図を印刷

検討中リストに追加

LINEで送る