物件詳細

中古マンション購入や中古住宅購入、土地購入など不動産購入をお考えなら、全国店舗ネットワークの三井住友トラスト不動産にご相談下さい。豊富な物件情報をご用意し、物件探しをお手伝いをします。

中古一戸建て

  • 価格変更

京都市左京区上高野上畑町
価格
3,580万円
月々のお支払金額(試算)
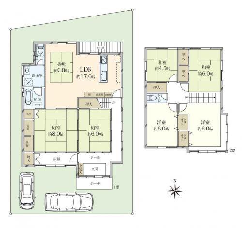
間取り
6LDK
建物面積
155.95m²
土地面積
175.20m²
  • 外観
  • 外観
  • 外観
  • 駐車場

資料がほしい・現地が見たい

物件の魅力

物件情報

更新日:2026年3月22日 次回更新予定日:2026年4月5日各項目の説明

所在地 京都府京都市左京区上高野上畑町 この街の情報を見る 周辺地図
交通 叡山電鉄 三宅八幡駅 徒歩5分
叡山電鉄 宝ケ池駅 徒歩13分
京都地下鉄烏丸線 国際会館駅 徒歩20分
価格 3,580万円 月々のお支払金額(試算)
間取り 6LDK
土地面積 175.20m2(52.9坪) 登記簿 建物延面積 155.95m2
構造/階建 木造/2階建 建築年月 1965年1月
土地権利 所有権 地目 登記簿:宅地
都市計画 市街化区域 用途地域 第一種低層住居専用地域
建ぺい率 50% 容積率 80%
駐車場   
接道状況 一方
設備・施設
設備・施設・
その他使用料金
現況 空家 引渡し可能年月 相談
取引態様 媒介
特記事項
備考 ・間取の詳細は確認中です/設備:オール電化、公営水道、本下水都市計画法他制限:最低敷地限度(100m2)
物件番号 NFE7BZ011

月々のお支払金額(試算)

物件価格
3,580 万円
ボーナス支払額(年間)
用意できる頭金
返済期間
適用する住宅ローン金利

月々のお支払金額  万円 年収も含めた詳細なシミュレーションはこちらローンシミュレーション

※シミュレーションでの試算(計算)結果は、あくまでも目安です。実際にローン契約をする際は、詳細を金融機関にご確認ください。

※実際のローン契約の際には、諸費用が別途かかります(手数料や印紙税、保証料など)。契約の際にご確認ください。

お問い合わせ

電話でのお問い合わせ

京都北センター

0120-70-6831(通話無料)

営業時間
9:30~17:30
定休日
水曜・祝日
住所
京都府京都市北区上賀茂岩ケ垣内町92 北山伊東ビル1階・2階
WEBでのお問い合わせ

資料がほしい・現地が見たい

物件情報を印刷

検討中リストに追加

LINEで送る