物件詳細

中古マンション購入や中古住宅購入、土地購入など不動産購入をお考えなら、全国店舗ネットワークの三井住友トラスト不動産にご相談下さい。豊富な物件情報をご用意し、物件探しをお手伝いをします。

中古一戸建て

大阪市東住吉区中野1丁目
価格
8,860万円
月々のお支払金額(試算)
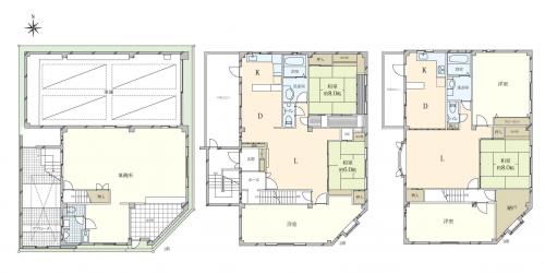
間取り
6SLDK
建物面積
378.88m²
土地面積
186.18m²
  • 外観(撮影年月:2026年01月)
  • 外観(撮影年月:2026年01月)
  • 外観(撮影年月:2026年01月)
  • 外観(撮影年月:2026年01月)

資料がほしい・現地が見たい

物件の魅力

物件情報

更新日:2026年3月22日 次回更新予定日:2026年4月5日各項目の説明

所在地 大阪府大阪市東住吉区中野1丁目 この街の情報を見る 周辺地図
交通 大阪メトロ谷町線 駒川中野駅 徒歩6分
近鉄南大阪線 針中野駅 徒歩12分
大阪メトロ谷町線 平野駅 徒歩14分
価格 8,860万円 月々のお支払金額(試算)
間取り 6SLDK
土地面積 186.18m2(56.3坪) 登記簿 建物延面積 378.88m2
構造/階建 鉄骨/3階建 建築年月 1994年4月
土地権利 所有権 地目 登記簿:宅地
都市計画 市街化区域 用途地域 第一種住居地域
建ぺい率 80% 容積率 200%
駐車場 有(敷地内)  
接道状況 角地
設備・施設
設備・施設・
その他使用料金
現況 居住中 引渡し可能年月 相談
取引態様 媒介
特記事項
備考 ・凡例:s=納戸/設備:都市ガス、公営水道、本下水都市計画法他制限:準防火地域
物件番号 NFE0C1013

月々のお支払金額(試算)

物件価格
8,860 万円
ボーナス支払額(年間)
用意できる頭金
返済期間
適用する住宅ローン金利

月々のお支払金額  万円 年収も含めた詳細なシミュレーションはこちらローンシミュレーション

※シミュレーションでの試算(計算)結果は、あくまでも目安です。実際にローン契約をする際は、詳細を金融機関にご確認ください。

※実際のローン契約の際には、諸費用が別途かかります(手数料や印紙税、保証料など)。契約の際にご確認ください。

お問い合わせ

電話でのお問い合わせ

阿倍野センター

0120-620-551(通話無料)

営業時間
9:30~17:30
定休日
水曜・祝日
住所
大阪府大阪市阿倍野区阿倍野筋1丁目3番21号 岸本ビル6階
WEBでのお問い合わせ

資料がほしい・現地が見たい

物件情報を印刷

検討中リストに追加

LINEで送る

最近閲覧した物件

リストから削除する