物件詳細

中古マンション購入や中古住宅購入、土地購入など不動産購入をお考えなら、全国店舗ネットワークの三井住友トラスト不動産にご相談下さい。豊富な物件情報をご用意し、物件探しをお手伝いをします。

中古一戸建て

横浜市青葉区あざみ野南4丁目
価格
12,500万円
月々のお支払金額(試算)
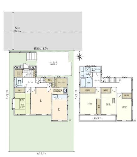
間取り
4LDK
建物面積
132.48m²
土地面積
201.32m²
  • 外観
  • アプローチ
  • アプローチ
  • リビング:・家具・調度品等は販売価格に含まれておりません
  • リビング

資料がほしい・現地が見たい

物件の魅力

物件情報

更新日:2026年3月22日 次回更新予定日:2026年4月5日各項目の説明

所在地 神奈川県横浜市青葉区あざみ野南4丁目 この街の情報を見る 周辺地図
交通 東急田園都市線 江田駅 徒歩12分
東急田園都市線 あざみ野駅 徒歩15分
横浜市営地下鉄ブルーライン あざみ野駅 徒歩15分
価格 12,500万円 月々のお支払金額(試算)
間取り 4LDK
土地面積 201.32m2(60.8坪) 登記簿 建物延面積 132.48m2
構造/階建 木造/2階建 建築年月 1998年1月
土地権利 所有権 地目 登記簿:宅地
都市計画 市街化区域 用途地域 第一種低層住居専用地域
建ぺい率 40% 容積率 80%
駐車場 有(敷地内)  
接道状況 一方
設備・施設
設備・施設・
その他使用料金
現況 空家 引渡し可能年月 相談
取引態様 媒介
特記事項
備考 ・建築基準法第22条指定区域に該当/設備:オール電化、公営水道、本下水都市計画法他制限:第1種高度地区
物件番号 NFB5BX001

月々のお支払金額(試算)

物件価格
12,500 万円
ボーナス支払額(年間)
用意できる頭金
返済期間
適用する住宅ローン金利

月々のお支払金額  万円 年収も含めた詳細なシミュレーションはこちらローンシミュレーション

※シミュレーションでの試算(計算)結果は、あくまでも目安です。実際にローン契約をする際は、詳細を金融機関にご確認ください。

※実際のローン契約の際には、諸費用が別途かかります(手数料や印紙税、保証料など)。契約の際にご確認ください。

お問い合わせ

電話でのお問い合わせ

たまプラーザセンター

0120-951-094(通話無料)

営業時間
9:30~17:30
定休日
水曜・祝日
住所
神奈川県横浜市青葉区美しが丘2丁目14番地5 リーフ美しが丘ビル2階
WEBでのお問い合わせ

資料がほしい・現地が見たい

物件情報を印刷

検討中リストに追加

LINEで送る