物件詳細

中古マンション購入や中古住宅購入、土地購入など不動産購入をお考えなら、全国店舗ネットワークの三井住友トラスト不動産にご相談下さい。豊富な物件情報をご用意し、物件探しをお手伝いをします。

中古一戸建て

大田区田園調布1丁目
価格
12,980万円
月々のお支払金額(試算)
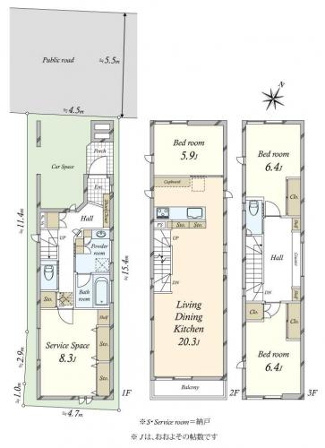
間取り
3SLDK
建物面積
118.70m²
土地面積
71.13m²
  • 外観
  • リビング・ダイニング
  • リビング・ダイニング
  • リビング
  • ダイニング

資料がほしい・現地が見たい

物件の魅力

物件情報

更新日:2026年2月4日 次回更新予定日:2026年2月18日各項目の説明

所在地 東京都大田区田園調布1丁目 この街の情報を見る 周辺地図
交通 東急東横線 多摩川駅 徒歩9分
東急目黒線 田園調布駅 徒歩11分
東急目黒線 多摩川駅 徒歩9分
価格 12,980万円 月々のお支払金額(試算)
間取り 3SLDK
土地面積 71.13m2(21.5坪) 登記簿 建物延面積 118.70m2
構造/階建 木造/3階建 建築年月 2017年3月
土地権利 所有権 地目 登記簿:宅地
都市計画 市街化区域 用途地域 近隣商業地域
建ぺい率 80% 容積率 200%
駐車場 有(敷地内)  
接道状況 一方
設備・施設
設備・施設・
その他使用料金
現況 居住中 引渡し可能年月 相談
取引態様 媒介
特記事項
備考 ・S=納戸/設備:都市ガス、公営水道、本下水都市計画法他制限:準防火地域、第2種高度地区、日影規制、景観計画
物件番号 NF66BZ019

月々のお支払金額(試算)

物件価格
12,980 万円
ボーナス支払額(年間)
用意できる頭金
返済期間
適用する住宅ローン金利

月々のお支払金額  万円 年収も含めた詳細なシミュレーションはこちらローンシミュレーション

※シミュレーションでの試算(計算)結果は、あくまでも目安です。実際にローン契約をする際は、詳細を金融機関にご確認ください。

※実際のローン契約の際には、諸費用が別途かかります(手数料や印紙税、保証料など)。契約の際にご確認ください。

お問い合わせ

電話でのお問い合わせ

自由が丘センター

0120-500-322(通話無料)

営業時間
9:30~17:30
定休日
水曜・祝日
住所
東京都目黒区自由が丘2丁目10番20号 トリニタ自由が丘4階
WEBでのお問い合わせ

資料がほしい・現地が見たい

物件情報を印刷

検討中リストに追加

LINEで送る