物件詳細

中古マンション購入や中古住宅購入、土地購入など不動産購入をお考えなら、全国店舗ネットワークの三井住友トラスト不動産にご相談下さい。豊富な物件情報をご用意し、物件探しをお手伝いをします。

中古マンション

  • NEW

常盤台ガーデンソサエティ
価格
8,480万円
月々のお支払金額(試算)
間取り
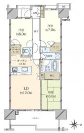
3LDK
専有面積
77.77m²
所在地
東京都板橋区前野町2丁目
  • 外観
  • 眺望:ズームなし
  • 眺望:ズームなし
  • 眺望:ズームあり

資料がほしい・現地が見たい

物件の魅力

物件情報

更新日:2026年3月24日 次回更新予定日:2026年4月7日各項目の説明

マンション名 常盤台ガーデンソサエティ
所在地 東京都板橋区前野町2丁目 この街の情報を見る 周辺地図
交通 東武東上線 ときわ台駅 徒歩8分
東武東上線 上板橋駅 徒歩16分
価格 8,480万円 月々のお支払金額(試算)
間取り 3LDK 専有面積 77.77m2(23.5坪) 壁芯
構造 鉄骨鉄筋コンクリート 所在階/階建 10階/18階建
バルコニー 13.62m2 主要採光方向
その他面積
建築年月 2009年1月 総戸数 419戸
土地権利 所有権 用途地域 準工業地域
管理形態 全部委託 管理員の勤務形態 日勤
管理費 12,450円/月 修繕積立金 17,890円/月
駐車場   
設備・施設
設備・施設・
その他使用料
インターネット使用料・CATV使用料・SCOOP使用料:2,365円/月
分譲会社
施工会社
管理会社
現況 居住中 引渡し可能年月 相談
取引態様 媒介
備考 ・駐輪場使用料:月額100~300円・バイク置場使用料:月額2,000円・トランクルーム使用料:月額1,800~2,700円・2026年4月よりインターネット使用料935円、SCOOP使用料110円に改定予定
物件番号 NF55C3015

月々のお支払金額(試算)

物件価格
8,480 万円
ボーナス支払額(年間)
用意できる頭金
返済期間
適用する住宅ローン金利

月々のお支払金額  万円 年収も含めた詳細なシミュレーションはこちらローンシミュレーション

※シミュレーションでの試算(計算)結果は、あくまでも目安です。実際にローン契約をする際は、詳細を金融機関にご確認ください。

※実際のローン契約の際には、諸費用が別途かかります(手数料や印紙税、保証料など)。契約の際にご確認ください。

お問い合わせ

電話でのお問い合わせ

池袋センター

0120-11-9972(通話無料)

営業時間
9:30~17:30
定休日
水曜・祝日
住所
東京都豊島区東池袋1丁目41番6号 菊邑91ビル4階
WEBでのお問い合わせ

資料がほしい・現地が見たい

物件情報を印刷

検討中リストに追加

LINEで送る

最近閲覧した物件