物件詳細

中古マンション購入や中古住宅購入、土地購入など不動産購入をお考えなら、全国店舗ネットワークの三井住友トラスト不動産にご相談下さい。豊富な物件情報をご用意し、物件探しをお手伝いをします。

中古一戸建て

名古屋市中村区稲葉地町5丁目
価格
3,480万円
月々のお支払金額(試算)
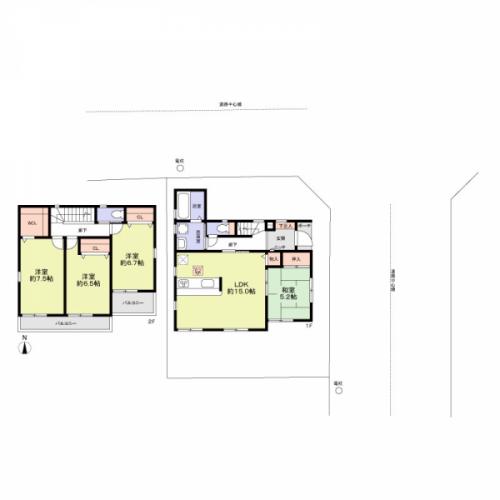
間取り
4LDK
建物面積
98.81m²
土地面積
111.53m²

資料がほしい・現地が見たい

物件の魅力

物件情報

更新日:2026年4月16日 次回更新予定日:2026年4月30日各項目の説明

所在地 愛知県名古屋市中村区稲葉地町5丁目 この街の情報を見る 周辺地図
交通 名古屋市営地下鉄東山線 中村公園駅 徒歩20分
JR関西本線 八田駅 徒歩37分
近鉄名古屋線 近鉄八田駅 徒歩38分
価格 3,480万円 月々のお支払金額(試算)
間取り 4LDK
土地面積 111.53m2(33.7坪) 登記簿 建物延面積 98.81m2
構造/階建 木造/2階建 建築年月 2017年7月
土地権利 所有権 地目 登記簿:宅地
都市計画 市街化区域 用途地域 第二種中高層住居専用地域
建ぺい率 60% 容積率 200%
駐車場 有(敷地内)  
接道状況 角地
設備・施設
設備・施設・
その他使用料金
現況 居住中 引渡し可能年月 相談
取引態様 媒介
特記事項
備考 緑化地域、都市機能誘導区域外、居住誘導区域内(要安全配慮区域)
物件番号 G00624622

月々のお支払金額(試算)

物件価格
3,480 万円
ボーナス支払額(年間)
用意できる頭金
返済期間
適用する住宅ローン金利

月々のお支払金額  万円 年収も含めた詳細なシミュレーションはこちらローンシミュレーション

※シミュレーションでの試算(計算)結果は、あくまでも目安です。実際にローン契約をする際は、詳細を金融機関にご確認ください。

※実際のローン契約の際には、諸費用が別途かかります(手数料や印紙税、保証料など)。契約の際にご確認ください。

お問い合わせ

電話でのお問い合わせ

名古屋駅前センター

0120-363-776(通話無料)

営業時間
9:30~17:30
定休日
水曜・祝日
住所
愛知県名古屋市中村区名駅3丁目25番3号 大橋ビルディング8階
WEBでのお問い合わせ

資料がほしい・現地が見たい

物件情報を印刷

検討中リストに追加

LINEで送る

最近閲覧した物件