物件詳細

中古マンション購入や中古住宅購入、土地購入など不動産購入をお考えなら、全国店舗ネットワークの三井住友トラスト不動産にご相談下さい。豊富な物件情報をご用意し、物件探しをお手伝いをします。

中古一戸建て

大田区山王2丁目
価格
16,300万円
月々のお支払金額(試算)
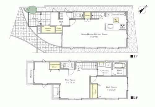
間取り
2LDK
建物面積
91.08m²
土地面積
93.15m²

資料がほしい・現地が見たい

物件の魅力

物件情報

更新日:2025年12月5日 次回更新予定日:2025年12月19日各項目の説明

所在地 東京都大田区山王2丁目 この街の情報を見る 周辺地図
交通 JR京浜東北・根岸線 大森駅 徒歩7分
京急本線 大森海岸駅 徒歩17分
都営浅草線 馬込駅 徒歩21分
価格 16,300万円 月々のお支払金額(試算)
間取り 2LDK
土地面積 93.15m2(28.1坪) 登記簿 建物延面積 91.08m2
構造/階建 木造/2階建 建築年月 2016年6月
土地権利 所有権 地目 登記簿:宅地
都市計画 市街化区域 用途地域 第一種低層住居専用地域
建ぺい率 50% 容積率 100%
駐車場   
接道状況
設備・施設
設備・施設・
その他使用料金
現況 空家 引渡し可能年月 即時
取引態様 媒介
特記事項
備考 ■弊社既分譲の邸宅■室内きれいにお使いです■人気の山王小学校区内立地■山王のヒルトップに位置し、地震や洪水の心配の少ない環境■ご見学希望等、お気軽にお問い合わせくださいませ ■JR京浜東北線「大森」駅より徒歩7分、大通りから一本中に入った閑静な住宅街■山王小学校学区(徒歩9分)■2016年築■長期優良認定住宅・・・耐震等級3など、永く暮らせる強いお住まい■建物面積は約27坪の2階建■ゆったりとしたリビング、開放的な2LDKプラン■シューズインクローゼット、階段下収納など豊富な収納が魅力■カースペース1台分(車種による)■空室につき。..
物件番号 E00819354

月々のお支払金額(試算)

物件価格
16,300 万円
ボーナス支払額(年間)
用意できる頭金
返済期間
適用する住宅ローン金利

月々のお支払金額  万円 年収も含めた詳細なシミュレーションはこちらローンシミュレーション

※シミュレーションでの試算(計算)結果は、あくまでも目安です。実際にローン契約をする際は、詳細を金融機関にご確認ください。

※実際のローン契約の際には、諸費用が別途かかります(手数料や印紙税、保証料など)。契約の際にご確認ください。

お問い合わせ

電話でのお問い合わせ

大森センター

0120-06-3161(通話無料)

営業時間
9:30~17:30
定休日
水曜・祝日
住所
東京都大田区山王2丁目5番9号 山手ビル4階
WEBでのお問い合わせ

資料がほしい・現地が見たい

物件情報を印刷

検討中リストに追加

LINEで送る