物件詳細

中古マンション購入や中古住宅購入、土地購入など不動産購入をお考えなら、全国店舗ネットワークの三井住友トラスト不動産にご相談下さい。豊富な物件情報をご用意し、物件探しをお手伝いをします。

中古マンション

  • NEW

ラディエンス金沢文庫2番館
価格
2,480万円
月々のお支払金額(試算)
間取り
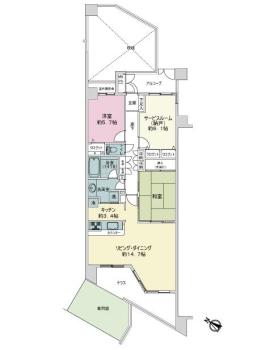
2SLDK
専有面積
80.37m²
所在地
神奈川県横浜市金沢区釜利谷西1丁目
  • 雁行配置マンション
  • エントランス外観
  • 約14.7帖の横長リビング
  • 約18.1帖のリビングダイニングキッチン
  • 和室と隣接しており、繋げての使用も可能な間取り

資料がほしい・現地が見たい

物件の魅力

物件情報

更新日:2025年12月5日 次回更新予定日:2025年12月19日各項目の説明

マンション名 ラディエンス金沢文庫2番館
所在地 神奈川県横浜市金沢区釜利谷西1丁目 この街の情報を見る 周辺地図
交通 京急本線 金沢文庫駅 徒歩22分

価格 2,480万円 月々のお支払金額(試算)
間取り 2SLDK 専有面積 80.37m2(24.3坪) 壁芯
構造 鉄筋コンクリート 所在階/階建 2階/6階建
バルコニー 主要採光方向 西
その他面積
建築年月 2002年3月 総戸数 47戸
土地権利 所有権 用途地域 第一種低層住居専用地域
管理形態 全部委託 管理員の勤務形態 日勤
管理費 12,600円/月 修繕積立金 25,640円/月
駐車場   
設備・施設
設備・施設・
その他使用料
CATV使用料、インターネット料:2,025円/月
分譲会社
施工会社
管理会社
現況 空家 引渡し可能年月 相談
取引態様 媒介
備考 日勤管理 家具及び什器は販売価格には含まれません。
物件番号 DMHF85255

月々のお支払金額(試算)

物件価格
2,480 万円
ボーナス支払額(年間)
用意できる頭金
返済期間
適用する住宅ローン金利

月々のお支払金額  万円 年収も含めた詳細なシミュレーションはこちらローンシミュレーション

※シミュレーションでの試算(計算)結果は、あくまでも目安です。実際にローン契約をする際は、詳細を金融機関にご確認ください。

※実際のローン契約の際には、諸費用が別途かかります(手数料や印紙税、保証料など)。契約の際にご確認ください。

お問い合わせ

電話でのお問い合わせ

上大岡センター

0120-93-4397(通話無料)

営業時間
9:30~17:30
定休日
水曜・祝日
住所
神奈川県横浜市港南区上大岡西1丁目6番1号 ゆめおおおかオフィスタワー17階
WEBでのお問い合わせ

資料がほしい・現地が見たい

物件情報を印刷

検討中リストに追加

LINEで送る

最近閲覧した物件

リストから削除する

リストから削除する

リストから削除する

リストから削除する

リストから削除する

リストから削除する