物件詳細
中古マンション購入や中古住宅購入、土地購入など不動産購入をお考えなら、全国店舗ネットワークの三井住友トラスト不動産にご相談下さい。豊富な物件情報をご用意し、物件探しをお手伝いをします。
新築一戸建て
おすすめポイント
-
担当者からのひと言
横浜第二センター
担当者:
伊藤 弓平
(いとう ゆみへい)
- ◇◆◇「希望ケ丘」駅から徒歩4分!利便性の高い新築戸建◇◆◇
【おススメPOINT♪】
■相鉄本線「希望ケ丘」駅北口から徒歩4分!
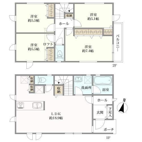
□使い勝手のよい4LDKの間取!
広々使える約18.9帖のリビングダイニングキッチン!
■各居室に収納付き
□リビングには冬も乾燥せず暖かく過ごせる床暖房付き
- 周辺施設
- ロピア希望が丘店 距離320m 徒歩4分
横浜銀行希望ケ丘支店 距離400m 徒歩5分
横浜市立東希望が丘小学校 距離870m 徒歩11分
物件情報
月々のお支払金額(試算)
ボーナス支払額(年間)
用意できる頭金
返済期間
適用する住宅ローン金利
月々のお支払金額 万円
年収も含めた詳細なシミュレーションはこちら
※シミュレーションでの試算(計算)結果は、あくまでも目安です。実際にローン契約をする際は、詳細を金融機関にご確認ください。
※実際のローン契約の際には、諸費用が別途かかります(手数料や印紙税、保証料など)。契約の際にご確認ください。
お問い合わせ
電話でのお問い合わせ
住所
神奈川県横浜市西区北幸1丁目6番1号 横浜ファーストビル9階
WEBでのお問い合わせ

最近閲覧した物件
- 岩崎町土地
- 横浜市保土ケ谷区岩崎町
- 5,580万円