物件詳細
中古マンション購入や中古住宅購入、土地購入など不動産購入をお考えなら、全国店舗ネットワークの三井住友トラスト不動産にご相談下さい。豊富な物件情報をご用意し、物件探しをお手伝いをします。
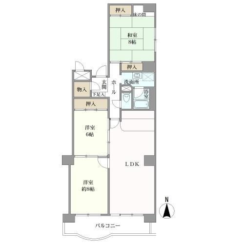
中古マンション
パノラマ画像
おすすめポイント
- 周辺施設
- 南港近隣3号公園 距離220m 徒歩3分
大阪市立南港みなみ小学校 距離250m 徒歩4分
スーパーナショナル南港店 距離500m 徒歩7分
物件情報
月々のお支払金額(試算)
ボーナス支払額(年間)
用意できる頭金
返済期間
適用する住宅ローン金利
月々のお支払金額 万円
年収も含めた詳細なシミュレーションはこちら
※シミュレーションでの試算(計算)結果は、あくまでも目安です。実際にローン契約をする際は、詳細を金融機関にご確認ください。
※実際のローン契約の際には、諸費用が別途かかります(手数料や印紙税、保証料など)。契約の際にご確認ください。
お問い合わせ
電話でのお問い合わせ
住所
大阪府大阪市北区角田町8番1号 大阪梅田ツインタワーズ・ノース24階
WEBでのお問い合わせ
