物件詳細
中古マンション購入や中古住宅購入、土地購入など不動産購入をお考えなら、全国店舗ネットワークの三井住友トラスト不動産にご相談下さい。豊富な物件情報をご用意し、物件探しをお手伝いをします。
事務所
物件情報
更新日:2025年12月18日 次回更新予定日:2026年1月1日各項目の説明
| 物件用途 |
事務所・オフィス用 |
| 所在地 |
神奈川県藤沢市石川6丁目
|
| 交通 |
横浜市営地下鉄ブルーライン 湘南台駅 徒歩25分 小田急江ノ島線 湘南台駅 徒歩25分 相鉄いずみ野線 湘南台駅 徒歩25分 |
| 価格 |
16,500万円 |
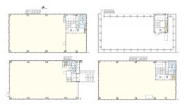
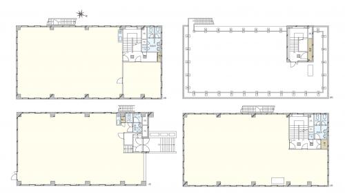
| 間取り |
|
| 現行年間収入 |
|
現行利回り |
|
| 想定年間収入 |
|
想定利回り |
|
| 現況 |
空家 |
引渡し可能年月 | 相談 |
| 土地面積 |
345.09m2(104.3坪) 登記簿 |
建物延面積 |
614.51m2 |
| 構造/階建 |
鉄骨/4階建 |
建築年月 |
1982年4月 |
| 土地権利 |
所有権 |
地目 |
登記簿:宅地 |
| 都市計画 |
市街化区域 |
用途地域 |
準工業地域 |
| 建ぺい率 |
60% |
容積率 |
200% |
| 駐車場 |
有(敷地内) |
| 接道状況 |
一方 |
| 設備・施設 |
|
設備・施設・ その他使用料 |
|
| 取引態様 |
媒介 |
| 特記事項 |
|
| 備考 |
敷地一部上空に高圧線があり、建築制限(高圧線から建物を3.6m離す等)があります。詳細はお問合せ下さい。/設備:都市ガス、公営水道、本下水/エレベーター無
■事業用向き:━━━━━━━━━━━━━━━━━━━ / / ・ ・ 藤沢市石川6丁目 事務所ビル ・ ・ / / ━━━━━━━━━━━━━━━━━━━ / / / ┏┓セールスポイント / ┗・━━━━━━━━━━━━━━━ / / / ・2階・3階はスケルトンに近い状態で / お好みの空間にリノベーション可能 / / 床面積:207.00m2(公簿)の2階・3階は / 間仕切り等の大部分が取り払われており / スケルトンに近い状態のため、 / お好みや利用用途に併せた内装仕様へと / 自由度の高いリノベーションが可能です。 / / / ・1階は高さのある電動 |
| 物件番号 |
NE6011001 |
※「現行年間収入」は、確認日現在の賃料収入に基づき算出した年間賃料収入です(空室分の賃料は含みません)。将来にわたり保証するものではありません。
※「現行利回り」は「現行年間収入/物件価格×100」の式で算出したものであり、当該物件を維持するために必要な費用を控除する前の収入で算出しています。
※「想定年間収入」は、周辺賃料から想定される満室時の予定年間賃料収入です。確実に得られることを保証するものではありません。
※「想定利回り」は「想定年間収入/物件価格×100」の式で算出したものであり、当該物件を維持するために必要な費用を控除する前の収入で算出しています。
お問い合わせ
WEBでのお問い合わせ
