物件詳細
中古マンション購入や中古住宅購入、土地購入など不動産購入をお考えなら、全国店舗ネットワークの三井住友トラスト不動産にご相談下さい。豊富な物件情報をご用意し、物件探しをお手伝いをします。
一戸建て
おすすめポイント
-
担当者からのひと言
阿倍野センター
担当者:
谷口 慎弥
(たにぐち しんや)
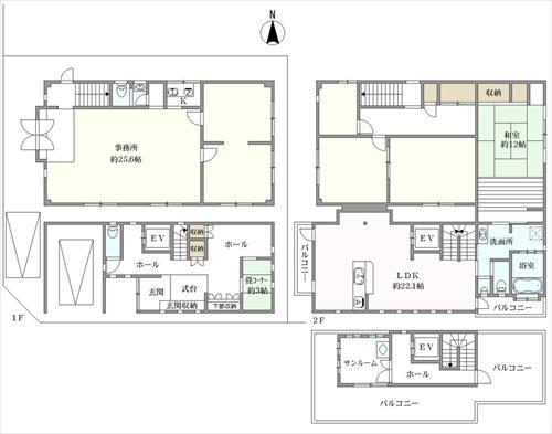
- 南側建物(空家)は、ホームエレベーター付きです。
※現行年間賃料収入に水道代を含んでいます。
※南側建物の和室については、北側建物の登記面積に含まれていますが、現状南側建物と行き来でき、北側建物からは行き来できません。
- 周辺施設
- Maxvalu駒川中野店 距離650m 徒歩9分
ファミリーマート駒川中野東店 距離70m 徒歩1分
物件情報
更新日:2026年4月10日 次回更新予定日:2026年4月24日各項目の説明
| 物件用途 |
一戸建用 |
| 所在地 |
大阪府大阪市東住吉区西今川4丁目
|
| 交通 |
大阪メトロ谷町線 駒川中野駅 徒歩3分 近鉄南大阪線 今川駅 徒歩8分 JR阪和線 南田辺駅 徒歩20分 |
| 価格 |
7,580万円 |
| 間取り |
1LDK |
| 現行年間収入 |
3,612,000円 (2026年3月8日確認) |
現行利回り |
4.76% |
| 想定年間収入 |
|
想定利回り |
|
| 賃貸状況 |
現況北側建物、駐車スペース、南側建物車庫部分を賃貸中。賃料等内訳:北側建物および駐車スペース月額280,000円(税込)、水道代月額3,000円(税込)、南側建物車庫部分月額18,000円(税込) |
| 現況 |
賃貸中 |
引渡し可能年月 | 相談 |
| 土地面積 |
189.81m2(57.4坪) 登記簿 別途私道負担約32.0m2 |
建物延面積 |
104.84m2 |
| 構造/階建 |
木造/2階建 |
建築年月 |
2010年12月 |
| 土地権利 |
所有権 |
地目 |
登記簿:宅地
現況:宅地 |
| 都市計画 |
市街化区域 |
用途地域 |
第一種住居地域 |
| 建ぺい率 |
80% |
容積率 |
200% |
| 駐車場 |
有(敷地内) 空1台 |
| 接道状況 |
角地 西約6.4m公道 南約4.0m私道 |
| 設備・施設 |
公営水道、公共下水、都市ガス |
設備・施設・ その他使用料金 |
|
| 取引態様 |
媒介 |
| 特記事項 |
■都市計画法他制限:準防火地域 |
| 備考 |
上記以外の建物 面積:延153.58㎡(46.45坪) 構造:鉄骨造2階建 建築年月:1985年1月北側建物と南側建物は結合しています。増築未登記部分有。 敷金280,000円については、売主買主間で清算を行いません。
|
| 物件番号 |
Ban250615 |
※「現行年間収入」は、確認日現在の賃料収入に基づき算出した年間賃料収入です(空室分の賃料は含みません)。将来にわたり保証するものではありません。
※「現行利回り」は「現行年間収入/物件価格×100」の式で算出したものであり、当該物件を維持するために必要な費用を控除する前の収入で算出しています。
※「想定年間収入」は、周辺賃料から想定される満室時の予定年間賃料収入です。確実に得られることを保証するものではありません。
※「想定利回り」は「想定年間収入/物件価格×100」の式で算出したものであり、当該物件を維持するために必要な費用を控除する前の収入で算出しています。
お問い合わせ
電話でのお問い合わせ
住所
大阪府大阪市阿倍野区阿倍野筋1丁目3番21号 岸本ビル6階
WEBでのお問い合わせ
