物件詳細
中古マンション購入や中古住宅購入、土地購入など不動産購入をお考えなら、全国店舗ネットワークの三井住友トラスト不動産にご相談下さい。豊富な物件情報をご用意し、物件探しをお手伝いをします。
店舗事務所
おすすめポイント
-
担当者からのひと言
福岡西新センター
担当者:
山元 健太郎
(やまもと けんたろう)
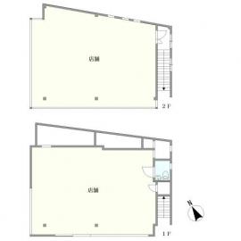
- 春日大通り沿いの角地の売り店舗・事務所!ロードサイド物件!
1階は賃貸中、2階は空室(賃貸予定)です!
1階:月額賃料275,000円(税込)で賃貸中
2階:月額賃料242,000円(税込)で賃貸予定
総戸数:2戸(1階 1戸、2階 1戸)
オーナーチェンジ物件です
・JR鹿児島本線「春日」駅まで徒歩11分
・西鉄バス「光町三丁目」停まで徒歩2分
・春日市役所まで徒歩13分(1040m)
・春日宝町郵便局まで徒歩7分(560m)
ご不明な点は、担当:山元までお問合せください。
- 周辺施設
- セブンイレブン若葉台店 距離110m 徒歩2分
マルキョウ宝町店 距離560m 徒歩7分
春日市役所 距離1040m 徒歩13分
物件情報
更新日:2026年3月31日 次回更新予定日:2026年4月14日各項目の説明
| 物件用途 |
店舗(小売・サービス)用 ロードサイド施設用 店舗用 |
| 所在地 |
福岡県春日市光町3丁目
|
| 交通 |
JR鹿児島本線 春日駅 徒歩11分 西鉄天神大牟田線 春日原駅 徒歩19分
|
| 価格 |
9,180万円 |
| 間取り |
店舗 総戸数:2戸 |
| 現行年間収入 |
3,300,000円 (2026年2月19日確認) |
現行利回り |
3.59% |
| 想定年間収入 |
6,204,000円 |
想定利回り |
6.75% |
| 賃貸状況 |
1階は月額賃料275,000円(税込)で賃貸中。2階は月額賃料242,000円(税込)で賃貸予定。 |
| 現況 |
一部賃貸中 |
引渡し可能年月 | 即時 |
| 土地面積 |
157.20m2(47.5坪) 登記簿 |
建物延面積 |
208.91m2 |
| 構造/階建 |
鉄骨/2階建 |
建築年月 |
1990年2月 |
| 土地権利 |
所有権 |
地目 |
登記簿:宅地
現況:宅地 |
| 都市計画 |
市街化区域 |
用途地域 |
準住居地域 |
| 建ぺい率 |
60% |
容積率 |
200% |
| 駐車場 |
無 |
| 接道状況 |
角地 南西約18.1m公道、間口:約14.4m 北西約4.0m公道、間口:約12.3m |
| 設備・施設 |
公営水道、公共下水 |
設備・施設・ その他使用料 |
|
| 取引態様 |
媒介 |
| 特記事項 |
■都市計画法他制限:第一種20m高度地区、建築基準法第22条区域、公有地拡大推進法、都市再生特別措置法:立地適正化計画における居住誘導区域内の都市機能誘導区域 |
| 備考 |
■2024年11月リフォーム済(2階部分の内部解体(スケルトン解体)工事、屋根修繕工事。2024年12月 外壁目地クラック補修、サッシ廻りシーリング打ち替え、屋根軒樋継目シーリング打ち。)建物名称:スクランブルビル
■投資用向き:1階は月額賃料275,000円(税込)で賃貸中。2階は月額賃料242,000円(税込)で賃貸予定。 |
| 物件番号 |
Smh250033 |
※「現行年間収入」は、確認日現在の賃料収入に基づき算出した年間賃料収入です(空室分の賃料は含みません)。将来にわたり保証するものではありません。
※「現行利回り」は「現行年間収入/物件価格×100」の式で算出したものであり、当該物件を維持するために必要な費用を控除する前の収入で算出しています。
※「想定年間収入」は、周辺賃料から想定される満室時の予定年間賃料収入です。確実に得られることを保証するものではありません。
※「想定利回り」は「想定年間収入/物件価格×100」の式で算出したものであり、当該物件を維持するために必要な費用を控除する前の収入で算出しています。
お問い合わせ
電話でのお問い合わせ
住所
福岡県福岡市早良区西新5丁目15番51号 ホワイティ西新2 1階
WEBでのお問い合わせ
