物件詳細
中古マンション購入や中古住宅購入、土地購入など不動産購入をお考えなら、全国店舗ネットワークの三井住友トラスト不動産にご相談下さい。豊富な物件情報をご用意し、物件探しをお手伝いをします。
マンション(一棟)
物件情報
更新日:2026年3月16日 次回更新予定日:2026年3月30日各項目の説明
| 物件用途 |
マンション用 |
| 所在地 |
神奈川県横浜市金沢区六浦1丁目
|
| 交通 |
京急本線 金沢八景駅 徒歩5分
|
| 価格 |
23,000万円 |
| 戸数 |
住戸(居住用):10戸 総戸数:10戸
|
| 各住戸(居住用)の専有面積 |
最小面積:34.70㎡~最大面積:99.56㎡ |
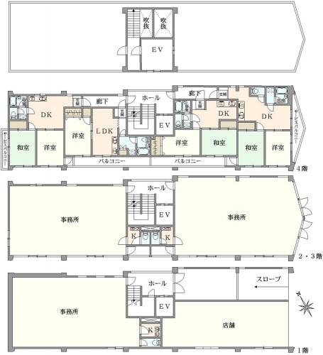
| 間取り |
|
| 現行年間収入 |
14,196,000円 |
現行利回り |
6.17% |
| 想定年間収入 |
19,488,000円 |
想定利回り |
8.47% |
| 現況 |
一部賃貸中 |
引渡し可能年月 | 相談 |
| 土地面積 |
258.58m2(78.2坪) 登記簿 |
建物延面積 |
824.85m2 |
| 構造/階建 |
鉄骨/4階建 |
建築年月 |
1993年1月 |
| 土地権利 |
所有権 |
地目 |
登記簿:宅地 |
| 都市計画 |
市街化区域 |
用途地域 |
近隣商業地域 |
| 建ぺい率 |
80% |
容積率 |
400% |
| 駐車場 |
無 |
| 接道状況 |
一方 |
| 設備・施設 |
|
設備・施設・ その他使用料 |
|
| 取引態様 |
媒介 |
| 特記事項 |
|
| 備考 |
専有面積:34.7m2~99.56m2/住戸数:10戸/設備:都市ガス、公営水道、本下水都市計画法他制限:準防火地域、第6種高度地区
■投資用向き:・京急線「金沢八景駅」徒歩5分 平坦な道のり / / ・近隣商業地域/建ぺい率80%/容積率400% / / ・前面道路幅員約22m公道 横須賀街道(国道16号線) / / ・周辺環境 / ・ローソンストア100 金沢八景店 約10m 徒歩1分 //・利回りは、賃料収入(共益費等を含む)に基づき算出した年間賃料収入を購入価格で除して求めた表面利回りです。賃料収入が将来にわたり確実に得られる保証はございません。また、利回りは、公租公課・共益費等、当該物件を維持するために必要な費用を控除する前の収入で計算しています。 |
| 物件番号 |
NF71C2004 |
※「現行年間収入」は、確認日現在の賃料収入に基づき算出した年間賃料収入です(空室分の賃料は含みません)。将来にわたり保証するものではありません。
※「現行利回り」は「現行年間収入/物件価格×100」の式で算出したものであり、当該物件を維持するために必要な費用を控除する前の収入で算出しています。
※「想定年間収入」は、周辺賃料から想定される満室時の予定年間賃料収入です。確実に得られることを保証するものではありません。
※「想定利回り」は「想定年間収入/物件価格×100」の式で算出したものであり、当該物件を維持するために必要な費用を控除する前の収入で算出しています。
お問い合わせ
電話でのお問い合わせ
住所
神奈川県横浜市港南区上大岡西1丁目6番1号 ゆめおおおかオフィスタワー17階
WEBでのお問い合わせ
