物件詳細
中古マンション購入や中古住宅購入、土地購入など不動産購入をお考えなら、全国店舗ネットワークの三井住友トラスト不動産にご相談下さい。豊富な物件情報をご用意し、物件探しをお手伝いをします。
工場
おすすめポイント
-
担当者からのひと言
阿倍野センター
担当者:
木下 裕功
(きのした ひろのり)
- ★近鉄難波・奈良線「今里駅」徒歩11分
★準工業地域
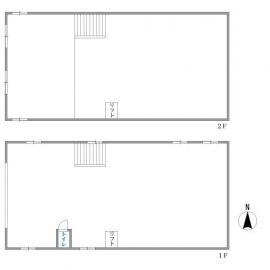
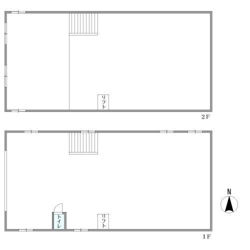
★貨物用リフト有(積載240キロ)
※区分所有建物/一棟の建物の表示 構造 鉄骨造スレート葺2階建
床面積 1階 173.23㎡ 2階 173.23㎡
合計 346.46㎡(104.80坪)
※隣地からのもらい火により壁面に焼跡有
※契約不適合責任、設備の修補義務売主免責
- 周辺施設
- 万代巽北店 距離450m 徒歩6分
セブンイレブン大阪中川5丁目店 距離340m 徒歩5分
ドラッグセガミ巽北店 距離450m 徒歩6分
物件情報
更新日:2026年4月30日 次回更新予定日:2026年5月14日各項目の説明
| 物件用途 |
事務所・オフィス用 工場用 倉庫用 |
| 所在地 |
大阪府大阪市生野区中川東1丁目
|
| 交通 |
近鉄難波・奈良線 今里駅 徒歩11分 大阪メトロ千日前線 小路駅 徒歩14分
|
| 価格 |
4,700万円 |
| 間取り |
|
| 現行年間収入 |
|
現行利回り |
|
| 想定年間収入 |
|
想定利回り |
|
| 現況 |
空家 |
引渡し可能年月 | 相談 |
| 土地面積 |
129.87m2(39.2坪) 登記簿 |
建物延面積 |
201.68m2 |
| 構造/階建 |
鉄骨/2階建 |
建築年月 |
不詳(建築後71年以上経過) |
| 土地権利 |
所有権 |
地目 |
登記簿:宅地
現況:宅地 |
| 都市計画 |
市街化区域 |
用途地域 |
準工業地域 |
| 建ぺい率 |
80%・300% |
容積率 |
300% |
| 駐車場 |
有(敷地内) |
| 接道状況 |
一方 西約5.5m公道 |
| 設備・施設 |
公営水道、公共下水、プロパンガス個別方式 |
設備・施設・ その他使用料 |
|
| 取引態様 |
媒介 |
| 特記事項 |
■都市計画法他制限:準防火地域、景観法、航空法、宅地造成及び特定盛土等規制法 |
| 備考 |
※隣地からのもらい火により壁面に焼跡有※区分所有建物 一棟の建物 床面線 346.46㎡
■事業用向き:工場、倉庫 |
| 物件番号 |
Ban250565 |
※「現行年間収入」は、確認日現在の賃料収入に基づき算出した年間賃料収入です(空室分の賃料は含みません)。将来にわたり保証するものではありません。
※「現行利回り」は「現行年間収入/物件価格×100」の式で算出したものであり、当該物件を維持するために必要な費用を控除する前の収入で算出しています。
※「想定年間収入」は、周辺賃料から想定される満室時の予定年間賃料収入です。確実に得られることを保証するものではありません。
※「想定利回り」は「想定年間収入/物件価格×100」の式で算出したものであり、当該物件を維持するために必要な費用を控除する前の収入で算出しています。
お問い合わせ
電話でのお問い合わせ
住所
大阪府大阪市阿倍野区阿倍野筋1丁目3番21号 岸本ビル6階
WEBでのお問い合わせ
