物件詳細

中古マンション購入や中古住宅購入、土地購入など不動産購入をお考えなら、全国店舗ネットワークの三井住友トラスト不動産にご相談下さい。豊富な物件情報をご用意し、物件探しをお手伝いをします。

一戸建て

  • オーナーチェンジ

吹田市豊津町
価格
4,000万円
想定利回り
4.50%
間取り
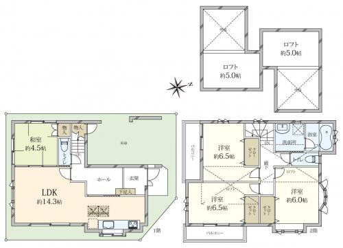
4LDK
建物面積
107.04m²
土地面積
80.97m²
  • 外観(撮影年月:2025年09月)
  • 外観(撮影年月:2025年09月)
  • 外観(撮影年月:2025年09月)
  • 外観(撮影年月:2025年09月)
  • 前面道路(撮影年月:2025年09月)

資料がほしい・現地が見たい

物件の魅力

物件情報

更新日:2025年12月5日 次回更新予定日:2025年12月19日各項目の説明

物件用途 一戸建用 
所在地 大阪府吹田市豊津町 この街の情報を見る 周辺地図
交通 大阪メトロ御堂筋線 江坂駅 徒歩10分

価格 4,000万円
間取り 4LDK
現行年間収入 現行利回り
想定年間収入 1,800,000円 想定利回り 4.50%
現況 賃貸中 引渡し可能年月 相談
土地面積 80.97m2(24.4坪) 登記簿 建物延面積 107.04m2
構造/階建 木造/2階建 建築年月 2004年5月
土地権利 所有権 地目 登記簿:宅地
都市計画 市街化区域 用途地域 第一種住居地域
建ぺい率 60% 容積率 200%
駐車場   
接道状況 角地
設備・施設
設備・施設・
その他使用料金
取引態様 媒介
特記事項
備考 設備:都市ガス、公営水道、本下水建物面積に車庫面積12.78m2含/都市計画法他制限:第3種高度地区
■投資用向き:・*:.・ 吹田市豊津町 戸建 ・.:*・ / / ┗・・━・・・・・おすすめポイント・・・・・━・ / / ・駅徒歩圏の利便性 / ・大阪メトロ御堂筋線「江坂」駅まで徒歩圏の利便性 /  通勤・通学に便利です。 / ・スーパー等の商業施設が充実しております。 / / ・土地面積:80.97m2、建物面積94.26m2 / ・車庫スペース1台分 ・車種による制限有 / ・角地 / / ・学校区 / ・豊津第二小学校、豊津西中学校 /  小学校も中学校も通学がしやすい立地です。 / / ・オーナーチェンジ物件として / ・賃貸付けがしやすい好立地です。 / ・退
物件番号 NFA5B9005
※「現行年間収入」は、確認日現在の賃料収入に基づき算出した年間賃料収入です(空室分の賃料は含みません)。将来にわたり保証するものではありません。
※「現行利回り」は「現行年間収入/物件価格×100」の式で算出したものであり、当該物件を維持するために必要な費用を控除する前の収入で算出しています。
※「想定年間収入」は、周辺賃料から想定される満室時の予定年間賃料収入です。確実に得られることを保証するものではありません。
※「想定利回り」は「想定年間収入/物件価格×100」の式で算出したものであり、当該物件を維持するために必要な費用を控除する前の収入で算出しています。

お問い合わせ

電話でのお問い合わせ

千里中央センター

0120-36-3312(通話無料)

営業時間
9:30~17:30
定休日
水曜・祝日
住所
大阪府豊中市新千里東町1丁目1番3号 SENRITOよみうり1階
WEBでのお問い合わせ

資料がほしい・現地が見たい

物件情報を印刷

検討中リストに追加

LINEで送る