物件詳細
中古マンション購入や中古住宅購入、土地購入など不動産購入をお考えなら、全国店舗ネットワークの三井住友トラスト不動産にご相談下さい。豊富な物件情報をご用意し、物件探しをお手伝いをします。
マンション(区分所有)
おすすめポイント
-
担当者からのひと言
大阪マンションプレイス
担当者:
上野 智史
(うえの さとし)
- ■投資用オーナーチェンジ物件■
~物件のオススメポイント~
■10階建8階部分の住戸
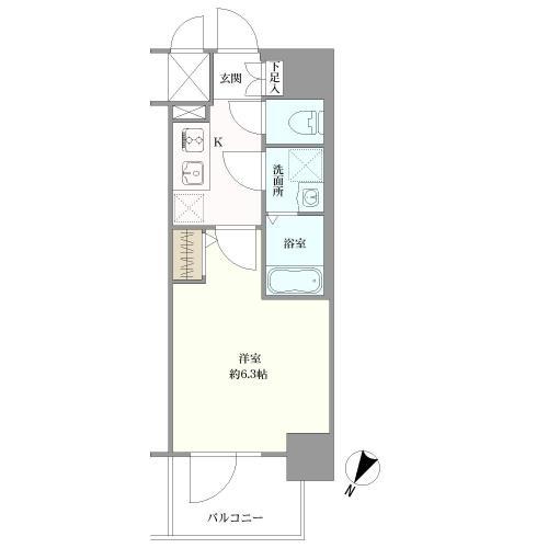
■専有面積21.90平米、1K
■浴室暖房換気乾燥機あり
■ユニットバス1014サイズ
■ペット飼育可能(規約による制限あり)
- 周辺施設
- ファミリーマート新北野三丁目店 距離40m 徒歩1分
阪急オアシス塚本店 距離530m 徒歩7分
ローソン淀川通塚本店 距離250m 徒歩4分
物件情報
更新日:2025年12月24日 次回更新予定日:2026年1月7日各項目の説明
| 物件用途 |
マンション用 |
| マンション名 |
エスリード新北野グランリンク |
| 所在地 |
大阪府大阪市淀川区新北野3丁目
|
| 交通 |
JR東海道本線 塚本駅 徒歩7分 阪急神戸線 十三駅 徒歩15分 JR東西線 御幣島駅 徒歩26分 |
| 価格 |
1,620万円 |
| 間取り |
1K |
専有面積 |
21.90m2(6.6坪) 壁芯 |
| 現行年間収入 |
806,400円 (2025年12月23日確認) |
現行利回り |
4.97% |
| 想定年間収入 |
|
想定利回り |
|
| 賃貸状況 |
お気軽にお問い合わせください。 |
| 現況 |
賃貸中 |
引渡し可能年月 | 即時 |
| 構造 |
鉄筋コンクリート |
所在階/階建 |
8階/10階建 |
| バルコニー |
3.32m2 |
主要採光方向 |
北西 |
| その他面積 |
|
| 建築年月 |
2018年10月 |
総戸数 |
72戸 |
| 土地権利 |
所有権(敷地権) |
用途地域 |
第二種住居地域 |
| 管理形態 |
全部委託 |
管理員の勤務形態 |
日勤 |
| 管理費 |
5,300円/月 |
修繕積立金 |
3,400円/月 |
| 駐車場 |
空無 |
| 設備・施設 |
駐輪場、バイク置場、エレベータ、宅配ボックス |
設備・施設・ その他使用料 |
駐輪場使用料:300円/月、バイク置場使用料:3,000円/月 |
| 分譲会社 |
日本エスリード株式会社 |
| 施工会社 |
岩出建設株式会社 |
| 管理会社 |
エスリード建物管理株式会社 |
| 取引態様 |
媒介 |
| 備考 |
■投資用向き:8階部分、専有面積21.90平米、1Kのオーナーチェンジ物件です。お気軽にお問い合わせください。 ■管理組合:あり |
| 物件番号 |
Boi250367 |
※「現行年間収入」は、確認日現在の賃料収入に基づき算出した年間賃料収入です(空室分の賃料は含みません)。将来にわたり保証するものではありません。
※「現行利回り」は「現行年間収入/物件価格×100」の式で算出したものであり、当該物件を維持するために必要な費用を控除する前の収入で算出しています。
※「想定年間収入」は、周辺賃料から想定される満室時の予定年間賃料収入です。確実に得られることを保証するものではありません。
※「想定利回り」は「想定年間収入/物件価格×100」の式で算出したものであり、当該物件を維持するために必要な費用を控除する前の収入で算出しています。
お問い合わせ
電話でのお問い合わせ
住所
大阪府大阪市北区角田町8番1号 大阪梅田ツインタワーズ・ノース24階
WEBでのお問い合わせ
