物件詳細
中古マンション購入や中古住宅購入、土地購入など不動産購入をお考えなら、全国店舗ネットワークの三井住友トラスト不動産にご相談下さい。豊富な物件情報をご用意し、物件探しをお手伝いをします。
マンション(区分所有)
おすすめポイント
-
担当者からのひと言
福岡センター
担当者:
瀬下 正大
(せした まさひろ)
- ◆西鉄天神大牟田線「西鉄平尾」駅徒歩5分
福岡市地下鉄七隈線「薬院」駅徒歩13分
◆10階建4階部分
◆月額賃料:80,000円にて賃貸中
◆現行利回:6.0%
現況/賃貸中 現行年間収入/960,000円(2025年12月9日確認)
※「現行年間収入」は、確認日現在の賃貸借契約に基づいた年間賃料収入
- 周辺施設
- 福岡市立平尾小学校 距離960m 徒歩12分
福岡市立平尾中学校 距離1590m 徒歩20分
サニー平尾店 距離350m 徒歩5分
物件情報
更新日:2026年2月6日 次回更新予定日:2026年2月20日各項目の説明
| 物件用途 |
マンション用 |
| マンション名 |
サンハイツ平尾 |
| 所在地 |
福岡県福岡市中央区平尾2丁目
|
| 交通 |
西鉄天神大牟田線 西鉄平尾駅 徒歩5分 福岡市営地下鉄七隈線 薬院駅 徒歩13分
|
| 価格 |
1,600万円 |
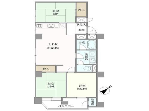
| 間取り |
3LDK |
専有面積 |
61.51m2(18.6坪) 壁芯 |
| 現行年間収入 |
960,000円 (2025年12月9日確認) |
現行利回り |
6.00% |
| 想定年間収入 |
960,000円 |
想定利回り |
6.00% |
| 現況 |
賃貸中 |
引渡し可能年月 | 相談 |
| 構造 |
鉄骨鉄筋コンクリート |
所在階/階建 |
4階/10階地下1階建 |
| バルコニー |
5.02m2 |
主要採光方向 |
南東 |
| その他面積 |
|
| 建築年月 |
1974年11月 |
総戸数 |
37戸 |
| 土地権利 |
所有権 |
用途地域 |
商業地域 |
| 管理形態 |
全部委託 |
管理員の勤務形態 |
日勤 |
| 管理費 |
13,532円/月 |
修繕積立金 |
11,072円/月 |
| 駐車場 |
空無 |
| 設備・施設 |
駐輪場(空無)、エレベータ |
設備・施設・ その他使用料 |
|
| 分譲会社 |
株式会社岩田屋 |
| 施工会社 |
日本国土開発株式会社 株式会社高木組共同企業体 |
| 管理会社 |
株式会社東急コミュニティー |
| 取引態様 |
媒介 |
| 備考 |
■管理組合:あり |
| 物件番号 |
Bfk250610 |
※「現行年間収入」は、確認日現在の賃料収入に基づき算出した年間賃料収入です(空室分の賃料は含みません)。将来にわたり保証するものではありません。
※「現行利回り」は「現行年間収入/物件価格×100」の式で算出したものであり、当該物件を維持するために必要な費用を控除する前の収入で算出しています。
※「想定年間収入」は、周辺賃料から想定される満室時の予定年間賃料収入です。確実に得られることを保証するものではありません。
※「想定利回り」は「想定年間収入/物件価格×100」の式で算出したものであり、当該物件を維持するために必要な費用を控除する前の収入で算出しています。
お問い合わせ
電話でのお問い合わせ
住所
福岡県福岡市中央区天神2丁目12番1号 天神ビル10階
WEBでのお問い合わせ
