中古一戸建て


更新日:2026年4月27日 次回更新予定日:2026年5月11日
| 所在地 | 東京都武蔵野市緑町1丁目 | ||
|---|---|---|---|
| 交通 | JR総武・中央緩行線 三鷹駅 バス乗車5分武蔵野住宅停 徒歩1分 JR総武・中央緩行線 吉祥寺駅 バス乗車23分武蔵野住宅停 徒歩1分 |
||
| 価格 | 16,000万円 | ||
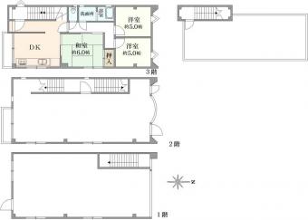
| 間取り | 3LDK | ||
| 土地面積 | 71.65m2(21.6坪) 登記簿 | 建物延面積 | 171.51m2 |
| 構造/階建 | 鉄骨/3階建 | 建築年月 | 1988年1月 |
| 土地権利 | 所有権 | 地目 | 登記簿:宅地 |
| 都市計画 | 市街化区域 | 用途地域 | 近隣商業地域 |
| 建ぺい率 | 80% | 容積率 | 300% |
| 駐車場 | 無 | ||
| 接道状況 | 一方 | ||
| 設備・施設 | |||
| 設備・施設・ その他使用料金 |
|||
| 現況 | 居住中 | 引渡し可能年月 | 相談 |
| 取引態様 | 媒介 | ||
| 特記事項 | |||
| 備考 | 設備:都市ガス、公営水道、本下水都市計画法他制限:準防火地域、第3種高度地区 |
||
| 物件番号 | NF64C4013 | ||