中古一戸建て


更新日:2026年4月30日 次回更新予定日:2026年5月14日
| 所在地 | 神奈川県厚木市上落合 | ||
|---|---|---|---|
| 交通 | 小田急小田原線 愛甲石田駅 徒歩16分 |
||
| 価格 | 1,890万円 | ||
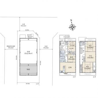
| 間取り | 5LDK | ||
| 土地面積 | 114.80m2(34.7坪) 登記簿 別途私道負担36.00m2 | 建物延面積 | 183.42m2 |
| 構造/階建 | 鉄骨/3階建 | 建築年月 | 1991年5月 |
| 土地権利 | 所有権 | 地目 | 登記簿:宅地 |
| 都市計画 | 市街化区域 | 用途地域 | 第一種中高層住居専用地域 |
| 建ぺい率 | 60% | 容積率 | 200% |
| 駐車場 | 有(敷地内) 空3台 | ||
| 接道状況 | 二方 | ||
| 設備・施設 | |||
| 設備・施設・ その他使用料金 |
|||
| 現況 | 空家 | 引渡し可能年月 | 相談 |
| 取引態様 | 媒介 | ||
| 特記事項 | |||
| 備考 | ■建物契約不適合責任免責 ■容積率は、前面道路幅員により制限されます。(幅員×4/10×100%) |
||
| 物件番号 | TAB260042 | ||