中古一戸建て


更新日:2026年4月24日 次回更新予定日:2026年5月8日
| 所在地 | 東京都台東区池之端4丁目 | ||
|---|---|---|---|
| 交通 | 東京メトロ千代田線 根津駅 徒歩3分 JR山手線 上野駅 徒歩16分 |
||
| 価格 | 29,000万円 | ||
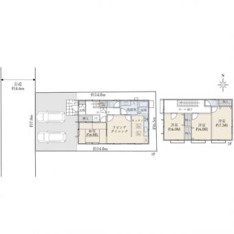
| 間取り | 4LDK | ||
| 土地面積 | 114.72m2(34.7坪) 登記簿 | 建物延面積 | 104.66m2 |
| 構造/階建 | 木造/2階建 | 建築年月 | 1989年9月 |
| 土地権利 | 所有権 | 地目 | 登記簿:宅地 |
| 都市計画 | 市街化区域 | 用途地域 | 第一種住居地域 |
| 建ぺい率 | 60% | 容積率 | 184% |
| 駐車場 | |||
| 接道状況 | 一方 | ||
| 設備・施設 | |||
| 設備・施設・ その他使用料金 |
|||
| 現況 | 居住中 | 引渡し可能年月 | 相談 |
| 取引態様 | 媒介 | ||
| 特記事項 | |||
| 備考 | 容積率は前面道路幅員による制限数値です。 |
||
| 物件番号 | TBJ250045 | ||