中古マンション


更新日:2026年3月24日 次回更新予定日:2026年4月7日
| マンション名 | 常盤台ガーデンソサエティ | ||
|---|---|---|---|
| 所在地 | 東京都板橋区前野町2丁目 | ||
| 交通 | 東武東上線 ときわ台駅 徒歩8分 東武東上線 上板橋駅 徒歩16分 |
||
| 価格 | 8,480万円 | ||
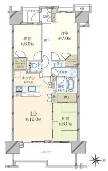
| 間取り | 3LDK | 専有面積 | 77.77m2(23.5坪) 壁芯 |
| 構造 | 鉄骨鉄筋コンクリート | 所在階/階建 | 10階/18階建 |
| バルコニー | 13.62m2 | 主要採光方向 | 東 |
| その他面積 | |||
| 建築年月 | 2009年1月 | 総戸数 | 419戸 |
| 土地権利 | 所有権 | 用途地域 | 準工業地域 |
| 管理形態 | 全部委託 | 管理員の勤務形態 | 日勤 |
| 管理費 | 12,450円/月 | 修繕積立金 | 17,890円/月 |
| 駐車場 | |||
| 設備・施設 | |||
| 設備・施設・ その他使用料 |
インターネット使用料・CATV使用料・SCOOP使用料:2,365円/月 | ||
| 分譲会社 | |||
| 施工会社 | |||
| 管理会社 | |||
| 現況 | 居住中 | 引渡し可能年月 | 相談 |
| 取引態様 | 媒介 | ||
| 備考 | ・駐輪場使用料:月額100~300円・バイク置場使用料:月額2,000円・トランクルーム使用料:月額1,800~2,700円・2026年4月よりインターネット使用料935円、SCOOP使用料110円に改定予定 |
||
| 物件番号 | NF55C3015 | ||