中古マンション


更新日:2026年3月22日 次回更新予定日:2026年4月5日
| マンション名 | 東建ニューハイツ成増 | ||
|---|---|---|---|
| 所在地 | 東京都板橋区成増1丁目 | ||
| 交通 | 東京メトロ有楽町線 地下鉄成増駅 徒歩8分 |
||
| 価格 | 4,590万円 | ||
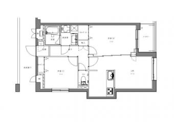
| 間取り | 2LDK | 専有面積 | 54.75m2(16.5坪) 壁芯 |
| 構造 | 鉄筋コンクリート | 所在階/階建 | 1階/5階地下1階建 |
| バルコニー | 3.89m2 | 主要採光方向 | |
| その他面積 | |||
| 建築年月 | 1987年8月 | 総戸数 | 39戸 |
| 土地権利 | 所有権 | 用途地域 | 第一種中高層住居専用地域 |
| 管理形態 | 全部委託 | 管理員の勤務形態 | 日勤 |
| 管理費 | 8,900円/月 | 修繕積立金 | 19,220円/月 |
| 駐車場 | 空無 | ||
| 設備・施設 | |||
| 設備・施設・ その他使用料 |
|||
| 分譲会社 | |||
| 施工会社 | |||
| 管理会社 | |||
| 現況 | 空家 | 引渡し可能年月 | 相談 |
| 取引態様 | 媒介 | ||
| 備考 | |||
| 物件番号 | TBE260048 | ||