中古マンション


更新日:2026年4月6日 次回更新予定日:2026年4月20日
| マンション名 | インペリアル六本木1号館 | ||
|---|---|---|---|
| 所在地 | 東京都港区六本木5丁目 | ||
| 交通 | 東京メトロ日比谷線 六本木駅 徒歩5分 東京メトロ南北線 六本木一丁目駅 徒歩7分 都営大江戸線 麻布十番駅 徒歩9分 |
||
| 価格 | 11,580万円 | ||
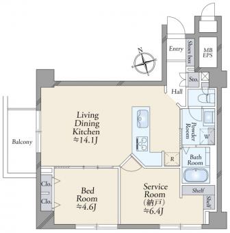
| 間取り | 1SLDK | 専有面積 | 55.72m2(16.8坪) 壁芯 |
| 構造 | 鉄骨鉄筋コンクリート | 所在階/階建 | 3階/11階地下3階建 |
| バルコニー | 4.50m2 | 主要採光方向 | 北西 |
| その他面積 | |||
| 建築年月 | 1982年11月 | 総戸数 | 105戸 |
| 土地権利 | 所有権 | 用途地域 | 第二種中高層住居専用地域 |
| 管理形態 | 全部委託 | 管理員の勤務形態 | 日勤 |
| 管理費 | 26,700円/月 | 修繕積立金 | 8,400円/月 |
| 駐車場 | 無 | ||
| 設備・施設 | |||
| 設備・施設・ その他使用料 |
給湯基本料、冷暖房基本料:6,000円/月 | ||
| 分譲会社 | |||
| 施工会社 | |||
| 管理会社 | |||
| 現況 | 空家 | 引渡し可能年月 | 相談 |
| 取引態様 | 媒介 | ||
| 備考 | ●耐震基準適合物件 ●管理形態:日勤(週7日)月曜~金曜/9:00~18:00、土曜・日曜・祝日/9:00~14:00 ●エレベーター:有 ●トランクルーム:無 ●給湯:セントラル給湯 ●水道料は隔月負担(水道使用料は0~16m3まで3,108円/2ヶ月) 未使用でも2ヶ月毎に3,108円の負担有 ●給湯使用料〈(月額)1,200円/m3 従量課金〉・冷暖房使用料〈(月額)1,200円/kw 従量課金〉の負担有 ●冷暖房基本料(月額)4,000円は1年間のうち6・7・12月分の請求月には基本料の負担無 |
||
| 物件番号 | M450PS08I | ||