中古一戸建て

更新日:2026年5月6日 次回更新予定日:2026年5月20日
| 所在地 | 埼玉県所沢市大字牛沼 | ||
|---|---|---|---|
| 交通 | 西武池袋線・西武豊島線 所沢駅 徒歩19分 西武新宿線 所沢駅 徒歩19分 西武新宿線 航空公園駅 徒歩25分 |
||
| 価格 | 3,600万円 | ||
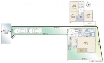
| 間取り | 2LDK | ||
| 土地面積 | 165.33m2(50.0坪) 登記簿 別途私道負担8.35m2 | 建物延面積 | 90.88m2 |
| 構造/階建 | 木造/2階建 | 建築年月 | 2020年11月 |
| 土地権利 | 所有権 | 地目 | 登記簿:宅地 |
| 都市計画 | 市街化調整区域 | 用途地域 | 無指定 |
| 建ぺい率 | 50% | 容積率 | 80% |
| 駐車場 | 有(敷地内) | ||
| 接道状況 | 一方 | ||
| 設備・施設 | |||
| 設備・施設・ その他使用料金 |
|||
| 現況 | 居住中 | 引渡し可能年月 | 相談 |
| 取引態様 | 媒介 | ||
| 特記事項 | ※宅地の造成および建物の建築はできません | ||
| 備考 | ・土地面積には路地状部分約50.45平米が含まれます。地勢:平坦 ・間取り:2LDK+WIC+SIC・その他:日影規制(幹の高さ7m越または階数3階以上)3h-2h/1.5m・駐車場:カースペース有(2台)車種による制限有・路地状敷地面積は地積測量図および建築計画概要書を基に算出しています・本物件は市街化調整区域内に存しますが、「所沢市都市計画法第34条」の立地基準に適合していれば建築可能となります |
||
| 物件番号 | M300PK0BG | ||