中古一戸建て


更新日:2026年5月6日 次回更新予定日:2026年5月20日
| 所在地 | 神奈川県横浜市保土ケ谷区東川島町 | ||
|---|---|---|---|
| 交通 | 相鉄本線 西谷駅 徒歩12分 相鉄新横浜線・相模鉄道相鉄新横浜 羽沢横浜国大駅 徒歩22分 |
||
| 価格 | 3,980万円 | ||
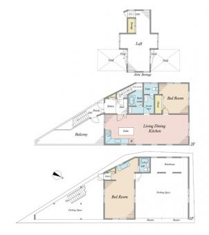
| 間取り | 2LDK | ||
| 土地面積 | 114.93m2(34.7坪) 登記簿 | 建物延面積 | 137.84m2 |
| 構造/階建 | 木造/2階建 | 建築年月 | 1993年7月 |
| 土地権利 | 所有権 | 地目 | 登記簿:宅地 |
| 都市計画 | 市街化区域 | 用途地域 | 第二種住居地域 |
| 建ぺい率 | 60% | 容積率 | 200% |
| 駐車場 | 有(敷地内) | ||
| 接道状況 | 一方 | ||
| 設備・施設 | |||
| 設備・施設・ その他使用料金 |
|||
| 現況 | 居住中 | 引渡し可能年月 | 相談 |
| 取引態様 | 媒介 | ||
| 特記事項 | |||
| 備考 | ※1階面積には車庫34.78m2を含みます ※2階面積にはロフト(屋根裏部分増築未登記)面積は含まれません |
||
| 物件番号 | YAAA14665 | ||