新築一戸建て


更新日:2026年3月14日 次回更新予定日:2026年3月28日
| 所在地 | 東京都町田市金森東4丁目 B号棟 | ||
|---|---|---|---|
| 交通 | JR横浜線 成瀬駅 徒歩17分 |
||
| 価格 | 5,890万円 | ||
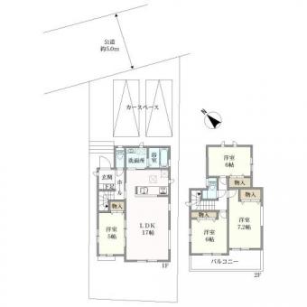
| 間取り | 4LDK | ||
| 土地面積 | 143.03m2(43.2坪) 実測 | 建物延面積 | 97.29m2 |
| 構造/階建 | 木造/2階建 | 建築年月 | 2026年6月予定 |
| 土地権利 | 所有権 | 地目 | 登記簿:宅地 現況:宅地 |
| 都市計画 | 市街化区域 | 用途地域 | 第一種低層住居専用地域・第二種中高層住居専用地域 |
| 建ぺい率 | 40%・60% | 容積率 | 80%・200% |
| 駐車場 | 有(敷地内) 空1台 | ||
| 接道状況 | 一方 北東約5.0m公道、間口:約7.6m | ||
| 設備・施設 | 公営水道、公共下水、都市ガス | ||
| 設備・施設・ その他使用料金 |
|||
| 現況 | 未完成 | 引渡し可能年月 | 2026年6月下旬以降 |
| 取引態様 | 媒介 | ||
| 特記事項 | ■都市計画法他制限:準防火地域、第1種高度地区、31m第2種高度地区、盛土規制法、小田急金森自治会建築協約 | ||
| 備考 | ■総戸数/区画数:2 販売戸数/区画数:1 ■建築確認番号:第HPA-25-14723-1号 | ||
| 物件番号 | Bmc250794 | ||