中古一戸建て


更新日:2026年3月22日 次回更新予定日:2026年4月5日
| 所在地 | 大阪府大阪市東住吉区中野1丁目 | ||
|---|---|---|---|
| 交通 | 大阪メトロ谷町線 駒川中野駅 徒歩6分 近鉄南大阪線 針中野駅 徒歩12分 大阪メトロ谷町線 平野駅 徒歩14分 |
||
| 価格 | 8,860万円 | ||
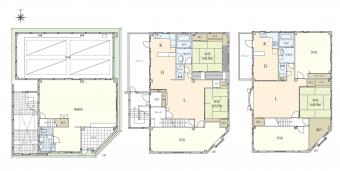
| 間取り | 6SLDK | ||
| 土地面積 | 186.18m2(56.3坪) 登記簿 | 建物延面積 | 378.88m2 |
| 構造/階建 | 鉄骨/3階建 | 建築年月 | 1994年4月 |
| 土地権利 | 所有権 | 地目 | 登記簿:宅地 |
| 都市計画 | 市街化区域 | 用途地域 | 第一種住居地域 |
| 建ぺい率 | 80% | 容積率 | 200% |
| 駐車場 | 有(敷地内) | ||
| 接道状況 | 角地 | ||
| 設備・施設 | |||
| 設備・施設・ その他使用料金 |
|||
| 現況 | 居住中 | 引渡し可能年月 | 相談 |
| 取引態様 | 媒介 | ||
| 特記事項 | |||
| 備考 | ・凡例:s=納戸/設備:都市ガス、公営水道、本下水都市計画法他制限:準防火地域 |
||
| 物件番号 | NFE0C1013 | ||