中古一戸建て


更新日:2026年2月5日 次回更新予定日:2026年2月19日
| 所在地 | 東京都日野市程久保2丁目 | ||
|---|---|---|---|
| 交通 | 多摩モノレール 多摩動物公園駅 徒歩8分 京王線 多摩動物公園駅 徒歩8分 多摩モノレール 程久保駅 徒歩12分 |
||
| 価格 | 2,780万円 | ||
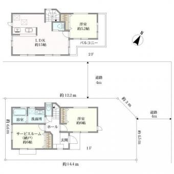
| 間取り | 2SLDK | ||
| 土地面積 | 93.95m2(28.4坪) 登記簿 | 建物延面積 | 75.12m2 |
| 構造/階建 | 木造/2階建 | 建築年月 | 2013年10月 |
| 土地権利 | 所有権 | 地目 | 登記簿:宅地 現況:宅地 |
| 都市計画 | 市街化区域 | 用途地域 | 第一種低層住居専用地域 |
| 建ぺい率 | 40% | 容積率 | 80% |
| 駐車場 | 有(敷地内) 空1台 | ||
| 接道状況 | 角地 東約4.0m公道(位置指定道路) 北約4.0m公道(位置指定道路) | ||
| 設備・施設 | 公営水道、公共下水、都市ガス | ||
| 設備・施設・ その他使用料金 |
|||
| 現況 | 空家 | 引渡し可能年月 | 即時 |
| 取引態様 | 媒介 | ||
| 特記事項 | ■都市計画法他制限:高度地区 | ||
| 備考 | ※掲載写真の家具・調度品は販売価格に含まれません。※掲載写真の撮影年月:2026年1月 ■住宅設備修理サポート可能物件 |
||
| 物件番号 | Bho250647 | ||