新築一戸建て


更新日:2025年12月5日 次回更新予定日:2025年12月19日
| 所在地 | 東京都練馬区向山2丁目 A号棟 | ||
|---|---|---|---|
| 交通 | 西武池袋線・西武豊島線 中村橋駅 徒歩9分 都営大江戸線 豊島園駅 徒歩10分 西武池袋線・西武豊島線 練馬駅 徒歩13分 |
||
| 価格 | 8,180万円 | ||
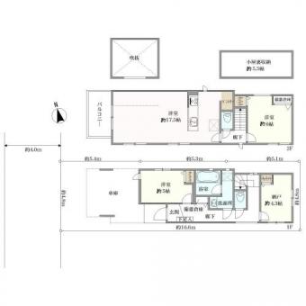
| 間取り | 2SLDK | ||
| 土地面積 | 80.51m2(24.3坪) 実測 | 建物延面積 | 93.37m2 車庫部分12.17m2含む |
| 構造/階建 | 木造/2階建 | 建築年月 | 2025年12月予定 |
| 土地権利 | 所有権 | 地目 | 登記簿:宅地 現況:宅地 |
| 都市計画 | 市街化区域 | 用途地域 | 第一種低層住居専用地域 |
| 建ぺい率 | 50% | 容積率 | 100% |
| 駐車場 | 有(敷地内) 空1台 | ||
| 接道状況 | 一方 西約4.0m公道、間口:約4.8m | ||
| 設備・施設 | 公営水道、公共下水、都市ガス | ||
| 設備・施設・ その他使用料金 |
|||
| 現況 | 未完成 | 引渡し可能年月 | 2026年1月下旬以降 |
| 取引態様 | 媒介 | ||
| 特記事項 | ■都市計画法他制限:第1種高度地区、準防火地域 | ||
| 備考 | S=納戸、建物面積に車庫部分面積も含まれます。 ■総戸数/区画数:3 販売戸数/区画数:1 ■建築確認番号:第25UDI1T建00653号 |
||
| 物件番号 | Bkd250350 | ||