中古一戸建て


更新日:2025年12月5日 次回更新予定日:2025年12月19日
| 所在地 | 兵庫県川西市見野3丁目 | ||
|---|---|---|---|
| 交通 | 能勢電鉄妙見線 山下駅 徒歩11分 能勢電鉄妙見線 畦野駅 徒歩13分 |
||
| 価格 | 2,280万円 | ||
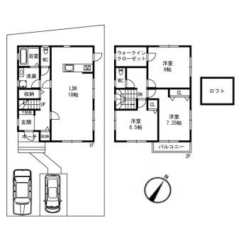
| 間取り | 3LDK | ||
| 土地面積 | 137.59m2(41.6坪) 登記簿 別途私道負担0.43m2 | 建物延面積 | 102.68m2 |
| 構造/階建 | 木造/2階建 | 建築年月 | 2001年7月 |
| 土地権利 | 所有権 | 地目 | 登記簿:宅地 |
| 都市計画 | 市街化区域 | 用途地域 | 第二種中高層住居専用地域 |
| 建ぺい率 | 60% | 容積率 | 200% |
| 駐車場 | 有(敷地内) 空2台 | ||
| 接道状況 | 一方 | ||
| 設備・施設 | |||
| 設備・施設・ その他使用料金 |
|||
| 現況 | 空家 | 引渡し可能年月 | 即時 |
| 取引態様 | 媒介 | ||
| 特記事項 | |||
| 備考 | ≪周辺≫・山下駅 徒歩11分(約850m) ・畦野駅 徒歩13分(約1000m)・ローソン 川西見野三丁目店 徒歩3分(約190m) ■2025年11月リフォーム内容 《内装》 ・新調:システムキッチン、ガス給湯器、モニターフォン ・交換:温水洗浄便座 ・張替:クロス ・その他:建具塗装 《外装》 ・駐車場1台増設 |
||
| 物件番号 | R00098836 | ||