中古一戸建て


更新日:2025年12月5日 次回更新予定日:2025年12月19日
| 所在地 | 大阪府大阪市北区神山町 | ||
|---|---|---|---|
| 交通 | 大阪メトロ谷町線 中崎町駅 徒歩5分 大阪メトロ堺筋線 扇町駅 徒歩7分 阪急神戸線 大阪梅田駅 徒歩10分 |
||
| 価格 | 14,500万円 | ||
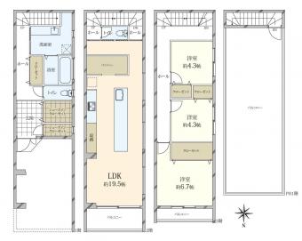
| 間取り | 3LDK | ||
| 土地面積 | 62.61m2(18.9坪) 登記簿 別途私道負担8.66m2 | 建物延面積 | 126.49m2 |
| 構造/階建 | 木造/3階建 | 建築年月 | 2024年7月 |
| 土地権利 | 所有権 | 地目 | 登記簿:宅地 |
| 都市計画 | 市街化区域 | 用途地域 | 商業地域 |
| 建ぺい率 | 80% | 容積率 | 240% |
| 駐車場 | 有(敷地内) | ||
| 接道状況 | 一方 | ||
| 設備・施設 | |||
| 設備・施設・ その他使用料金 |
|||
| 現況 | 空家 | 引渡し可能年月 | 相談 |
| 取引態様 | 媒介 | ||
| 特記事項 | |||
| 備考 | ・凡例:SIC=シューズインクローゼット/設備:都市ガス、公営水道、本下水都市計画法他制限:防火地域 |
||
| 物件番号 | NFE0BY001 | ||