中古一戸建て


更新日:2025年12月5日 次回更新予定日:2025年12月19日
| 所在地 | 神奈川県逗子市久木8丁目 | ||
|---|---|---|---|
| 交通 | JR横須賀線 逗子駅 バス乗車12分坂上停 徒歩3分 JR横須賀線 鎌倉駅 バス乗車15分東泉水停 徒歩3分 |
||
| 価格 | 3,897万円 | ||
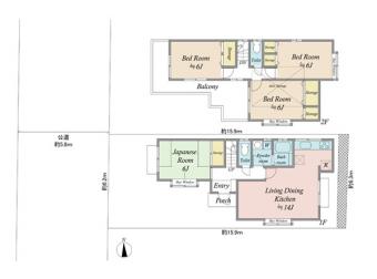
| 間取り | 4LDK | ||
| 土地面積 | 100.31m2(30.3坪) 登記簿 | 建物延面積 | 90.53m2 |
| 構造/階建 | 木造/2階建 | 建築年月 | 2000年7月 |
| 土地権利 | 所有権 | 地目 | 登記簿:宅地 |
| 都市計画 | 市街化区域 | 用途地域 | 第一種低層住居専用地域 |
| 建ぺい率 | 50% | 容積率 | 100% |
| 駐車場 | 有(敷地内) | ||
| 接道状況 | 一方 | ||
| 設備・施設 | |||
| 設備・施設・ その他使用料金 |
|||
| 現況 | 空家 | 引渡し可能年月 | 相談 |
| 取引態様 | 媒介 | ||
| 特記事項 | |||
| 備考 | |||
| 物件番号 | YAAA13775 | ||