中古マンション


更新日:2025年12月5日 次回更新予定日:2025年12月19日
| マンション名 | シャトー本町 | ||
|---|---|---|---|
| 所在地 | 大阪府大阪市西区西本町1丁目 | ||
| 交通 | 大阪メトロ御堂筋線 本町駅 徒歩4分 大阪メトロ中央線・大阪市中央線 本町駅 徒歩4分 大阪メトロ四つ橋線 本町駅 徒歩4分 |
||
| 価格 | 7,490万円 | ||
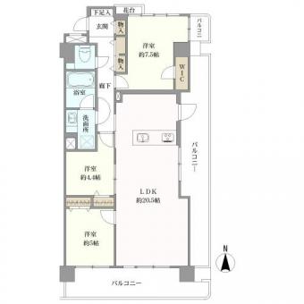
| 間取り | フラワーポット面積/0.86㎡ | 専有面積 | 82.68m2(25.0坪) 壁芯 |
| 構造 | 鉄骨鉄筋コンクリート | 所在階/階建 | 11階/15階地下1階建 |
| バルコニー | 27.74m2 | 主要採光方向 | 南 |
| その他面積 | |||
| 建築年月 | 1998年2月 | 総戸数 | 55戸 |
| 土地権利 | 所有権(敷地権) | 用途地域 | 商業地域 |
| 管理形態 | 一部委託 | 管理員の勤務形態 | 日勤 |
| 管理費 | 14,950円/月 | 修繕積立金 | 16,540円/月 |
| 駐車場 | 空無 | ||
| 設備・施設 | 駐輪場、バイク置場、エレベータ、宅配ボックス | ||
| 設備・施設・ その他使用料 |
水道基本料:3,080円/月 | ||
| 分譲会社 | 三晃住宅株式会社 | ||
| 施工会社 | 大末建設株式会社 | ||
| 管理会社 | 有限会社コスモ | ||
| 現況 | 空家 | 引渡し可能年月 | 即時 |
| 取引態様 | 媒介 | ||
| 備考 | フラワーポット面積/0.86㎡ ■管理組合:あり |
||
| 物件番号 | Soi250410 | ||