中古一戸建て


更新日:2025年12月5日 次回更新予定日:2025年12月19日
| 所在地 | 東京都大田区南久が原2丁目 | ||
|---|---|---|---|
| 交通 | 東急池上線 久が原駅 徒歩5分 東急多摩川線 鵜の木駅 徒歩6分 |
||
| 価格 | 22,000万円 | ||
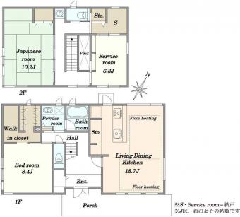
| 間取り | 3SLDK | ||
| 土地面積 | 233.78m2(70.7坪) 登記簿 | 建物延面積 | 124.87m2 |
| 構造/階建 | 軽量鉄骨/2階建 | 建築年月 | 2022年9月 |
| 土地権利 | 所有権 | 地目 | 登記簿:宅地 |
| 都市計画 | 市街化区域 | 用途地域 | 第一種中高層住居専用地域 |
| 建ぺい率 | 60% | 容積率 | 200% |
| 駐車場 | 有(敷地内) | ||
| 接道状況 | 一方 | ||
| 設備・施設 | |||
| 設備・施設・ その他使用料金 |
|||
| 現況 | 居住中 | 引渡し可能年月 | 相談 |
| 取引態様 | 媒介 | ||
| 特記事項 | |||
| 備考 | 設備:都市ガス、公営水道、本下水都市計画法他制限:準防火地域、第2種高度地区、計画道路あり(計画決定) |
||
| 物件番号 | NFE1B8003 | ||