工場


更新日:2026年4月30日 次回更新予定日:2026年5月14日
| 物件用途 | 事務所・オフィス用 工場用 倉庫用 | ||
|---|---|---|---|
| 所在地 | 大阪府大阪市生野区中川東1丁目 | ||
| 交通 | 近鉄難波・奈良線 今里駅 徒歩11分 大阪メトロ千日前線 小路駅 徒歩14分 |
||
| 価格 | 4,700万円 | ||
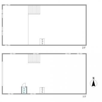
| 間取り | |||
| 現行年間収入 | 現行利回り | ||
| 想定年間収入 | 想定利回り | ||
| 現況 | 空家 | 引渡し可能年月 | 相談 |
| 土地面積 | 129.87m2(39.2坪) 登記簿 | 建物延面積 | 201.68m2 |
| 構造/階建 | 鉄骨/2階建 | 建築年月 | 不詳(建築後71年以上経過) |
| 土地権利 | 所有権 | 地目 | 登記簿:宅地 現況:宅地 |
| 都市計画 | 市街化区域 | 用途地域 | 準工業地域 |
| 建ぺい率 | 80%・300% | 容積率 | 300% |
| 駐車場 | 有(敷地内) | ||
| 接道状況 | 一方 西約5.5m公道 | ||
| 設備・施設 | 公営水道、公共下水、プロパンガス個別方式 | ||
| 設備・施設・ その他使用料 |
|||
| 取引態様 | 媒介 | ||
| 特記事項 | ■都市計画法他制限:準防火地域、景観法、航空法、宅地造成及び特定盛土等規制法 | ||
| 備考 | ※隣地からのもらい火により壁面に焼跡有※区分所有建物 一棟の建物 床面線 346.46㎡ ■事業用向き:工場、倉庫 |
||
| 物件番号 | Ban250565 | ||