一戸建て


更新日:2025年12月5日 次回更新予定日:2025年12月19日
| 物件用途 | 一戸建用 | ||
|---|---|---|---|
| 所在地 | 大阪府吹田市豊津町 | ||
| 交通 | 大阪メトロ御堂筋線 江坂駅 徒歩10分 |
||
| 価格 | 4,000万円 | ||
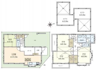
| 間取り | 4LDK | ||
| 現行年間収入 | 現行利回り | ||
| 想定年間収入 | 1,800,000円 | 想定利回り | 4.50% |
| 現況 | 賃貸中 | 引渡し可能年月 | 相談 |
| 土地面積 | 80.97m2(24.4坪) 登記簿 | 建物延面積 | 107.04m2 |
| 構造/階建 | 木造/2階建 | 建築年月 | 2004年5月 |
| 土地権利 | 所有権 | 地目 | 登記簿:宅地 |
| 都市計画 | 市街化区域 | 用途地域 | 第一種住居地域 |
| 建ぺい率 | 60% | 容積率 | 200% |
| 駐車場 | |||
| 接道状況 | 角地 | ||
| 設備・施設 | |||
| 設備・施設・ その他使用料金 |
|||
| 取引態様 | 媒介 | ||
| 特記事項 | |||
| 備考 | 設備:都市ガス、公営水道、本下水建物面積に車庫面積12.78m2含/都市計画法他制限:第3種高度地区 ■投資用向き:・*:.・ 吹田市豊津町 戸建 ・.:*・ / / ┗・・━・・・・・おすすめポイント・・・・・━・ / / ・駅徒歩圏の利便性 / ・大阪メトロ御堂筋線「江坂」駅まで徒歩圏の利便性 / 通勤・通学に便利です。 / ・スーパー等の商業施設が充実しております。 / / ・土地面積:80.97m2、建物面積94.26m2 / ・車庫スペース1台分 ・車種による制限有 / ・角地 / / ・学校区 / ・豊津第二小学校、豊津西中学校 / 小学校も中学校も通学がしやすい立地です。 / / ・オーナーチェンジ物件として / ・賃貸付けがしやすい好立地です。 / ・退 |
||
| 物件番号 | NFA5B9005 | ||